16/19
Paylaş
Resmi Orjinal Boyutunda Göster
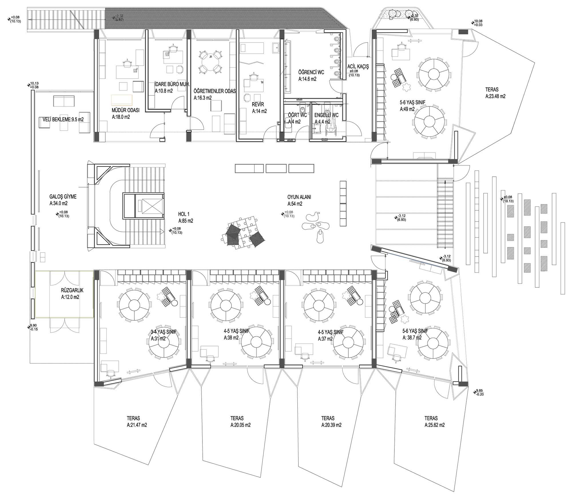
Bahriye Üçok Anaokulu
Proje Yeri: İstanbul, Kadıköy
Proje Ofisi: Dilekci Mimarlık (DDA)
Proje Tipi: Anaokulu / Kreş
Proje Tipi Grubu: Eğitim
Tasarım Ekibi: Durmuş Dilekci
İşveren: Kadıköy Belediyesi
Danışman: ERKE Sürdürülebilir Bina Tasarım Danışmanlık, Cemil Yaman
Yardımcı: Merve Toğru, Evren Alpay, Ayber Gülfer, Sinem Öztürk
Ana Yüklenici: Ertek İnşaat
Peyzaj Mimarlığı: DS Mimarlık
Statik Projesi: Enproje , Ezel Özdil
Mekanik Projesi: Arke Mühendislik, Mukadder Gültekin
Elektrik Projesi: ERKE Mühendislik, Dilda Yaman
Fotoğraf: Yercekim Mimari Fotograf, Büşra Yeltekin
Proje Başlangıç Yılı: 2012
Proje Bitiş Yılı: 2015
İnşaat Başlangıç Yılı: 2015
İnşaat Bitiş Yılı: 2016
Toplam İnşaat Alanı: 1,200 m2