11/13
Paylaş
Resmi Orjinal Boyutunda Göster
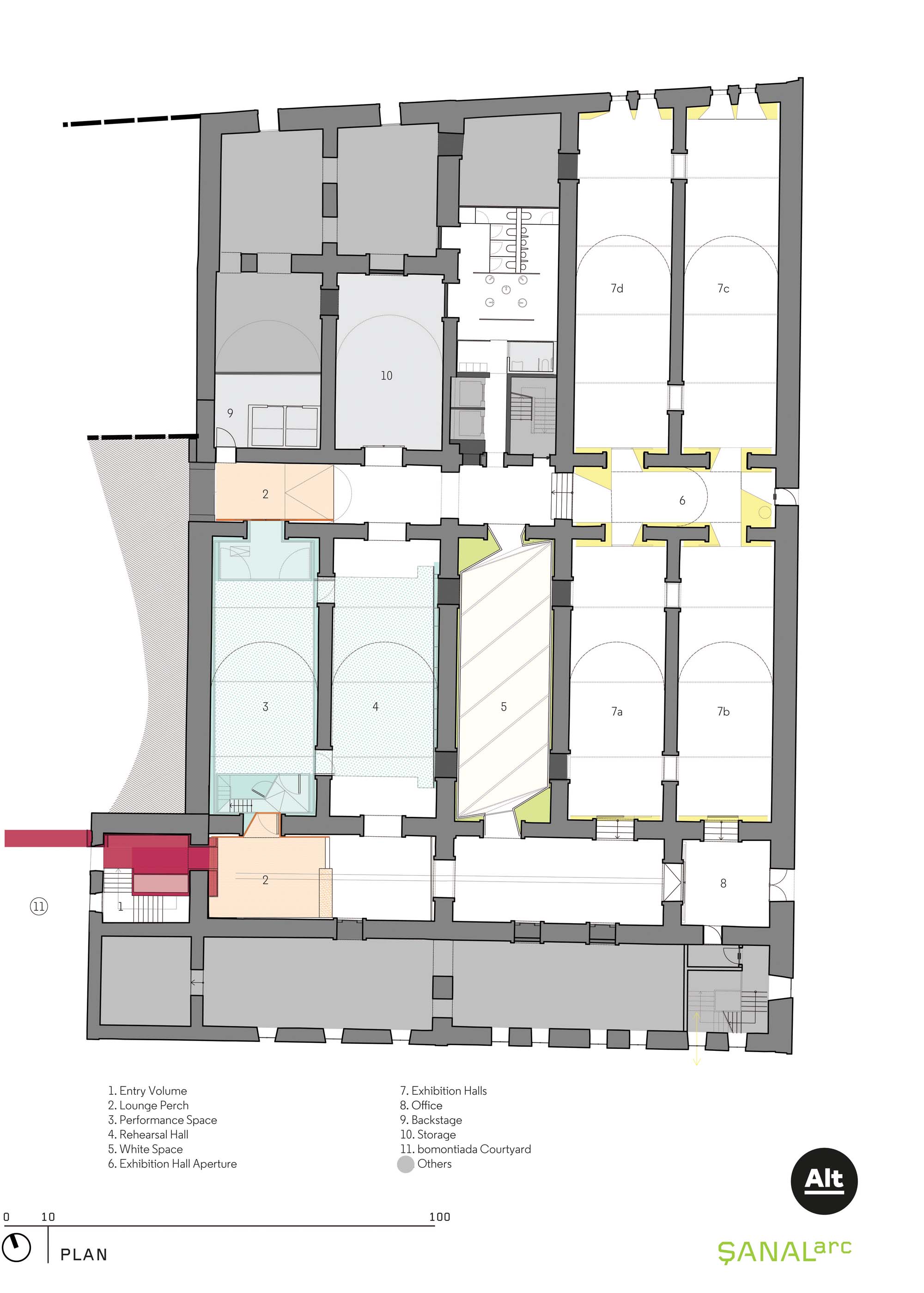
ALT Sergi Alanları
Proje Yeri: Şişli, İstanbul
Proje Ofisi: SANALarc Mimarlık, Araştırma ve Kentsel Tasarım
Proje Tipi: Sergi Mekanı / Galeri
Proje Tipi Grubu: Kültür
Tasarım Ekibi: Alexis Şanal, Murat Şanal
İşveren: Bomonti Kültür Sanat A.Ş
Danışman: YBT Yapısal Tasarım Hizmetleri (YBTAS)
Yardımcı: Didem Sağlam, Begüm Öner, Ulufer Çelik, Burak Saatçioğlu, Bassil Taleb, Matyas Skardelli, Cibeles Sanchez
Ana Yüklenici: Siska İnşaat
Aydınlatma Projesi: ZKLD Studio
Mekanik Projesi: Akım Mühendislik
Elektrik Projesi: Esan Mühendislik
Akustik Danışmanı: Talayman Akustik
Yangın Güvenlik Danışmanı: Abdurrahman Kılıç
Fotoğraf: Emre Dörter, İbrahim Özbunar, SANALarc Mimarlık, Araştırma ve Kentsel Tasarım
Proje Başlangıç Yılı: 2015
Proje Bitiş Yılı: 2015
İnşaat Başlangıç Yılı: 2015
İnşaat Bitiş Yılı: 2016
Toplam İnşaat Alanı: 1,300 m2