26/28
Paylaş
Resmi Orjinal Boyutunda Göster
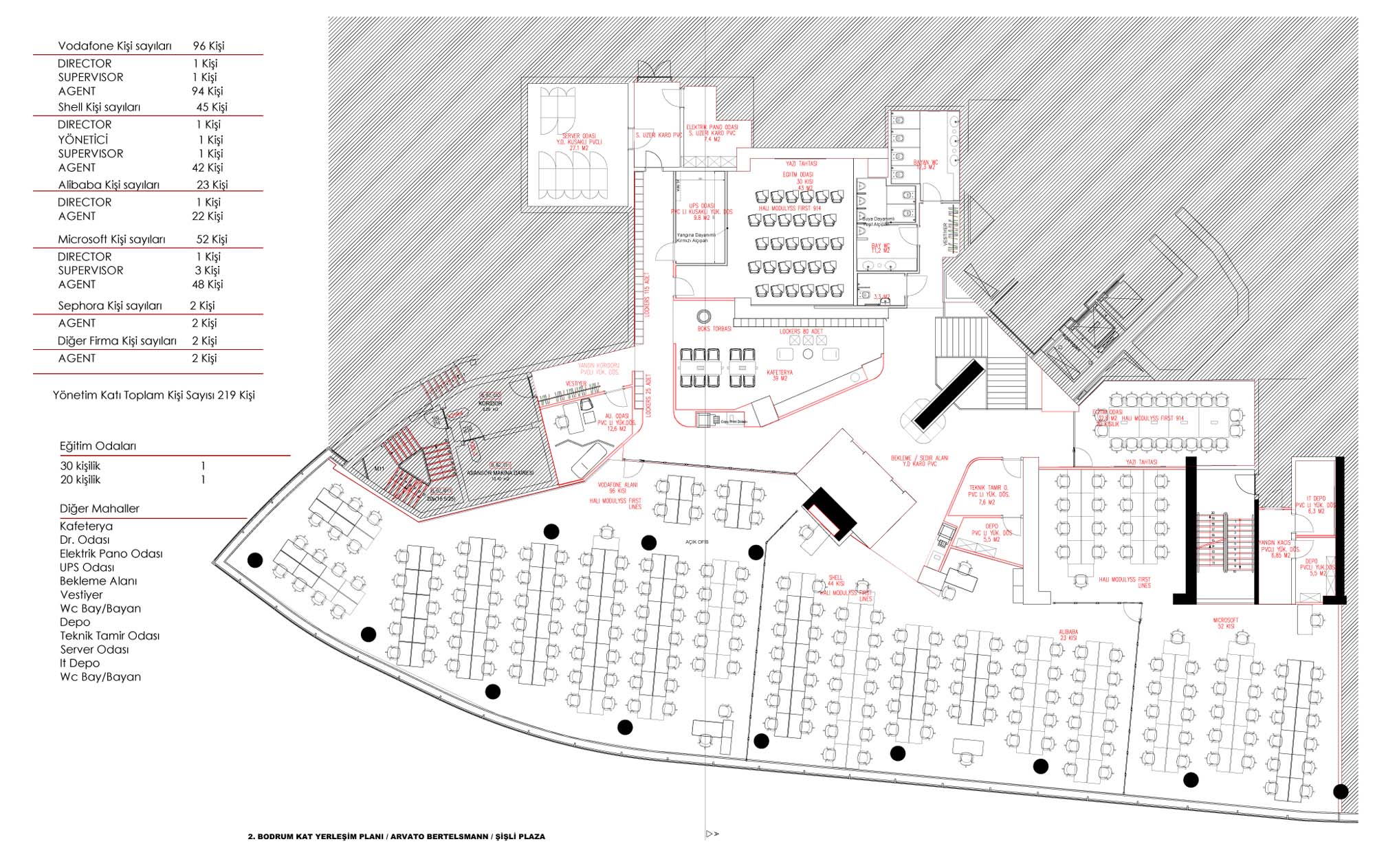
Arvato Bertelsman İstanbul Ofisi
Proje Yeri: Şişli, İstanbul
Proje Ofisi: A4 Mimarlık
Proje Tipi: Ofis
Proje Tipi Grubu: Ticari
Tasarım Ekibi: Sanem Yılmaz Atabek, Adil Kırkaya
Mimari Proje Ekibi: Sanem Yılmaz Atabek, Nihat Çakır, Kaan Aşer
İşveren: Arvato Bertelsman
Ana Yüklenici: A4 Mimarlık
Proje Yöneticisi: Sanem Yılmaz Atabek
Grafik Tasarım: A4 Mimarlık
Mekanik Projesi: Gresis Mühendislik
Elektrik Projesi: Tan Mühendislik
Tesisat Projesi: Gresis Mühendislik
Fotoğraf: Polat Gülkaş
Şantiye Yöneticisi: İsmail Özata, Kaan Aşer
Proje Başlangıç Yılı: 2016
Proje Bitiş Yılı: 2016
İnşaat Başlangıç Yılı: 2016
İnşaat Bitiş Yılı: 2016
Toplam İnşaat Alanı: 3,200 m2