15/15
Paylaş
Resmi Orjinal Boyutunda Göster
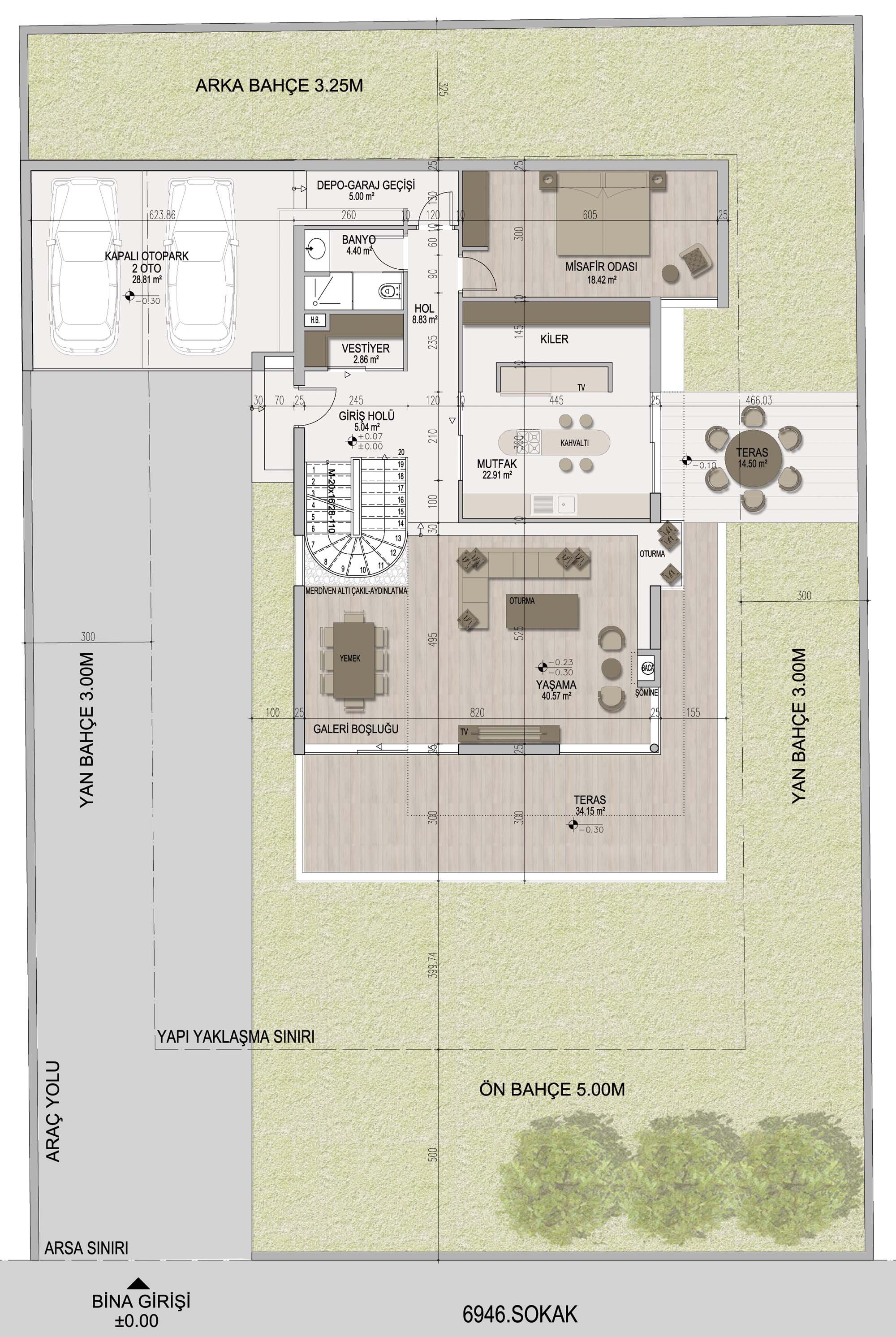
Ergölen Evi
Project Location: Tepebaşı , Eskişehir
Project Office: Esra Moza Mimarlık Ofisi
Project Type: Single House
Proje Tipi Grubu: Konut
Tasarım Ekibi: Esra Aydoğan Moza
Employer: Cem Ergölen, Kübra Ergölen
Yardımcı: İbrahim Erbey, Talip Aytekin
Ana Yüklenici: Esra Moza Mimarlık Ofisi
Projcet Manager: Esra Aydoğan Moza
Structural Project: Yasin Aydın
Mechanical Project: Mesut Bıyık
Electrical Project: Murat Çavuş
Plumbing Project: Mesut Bıyık
Project Start Date: 2014
Project End Date: 2014
Construction Start Date: 2014
Construction End Date: 2016
Building Plot Area: 600 m²
Total Construction Area: 463 m2