12/17
Paylaş
Resmi Orjinal Boyutunda Göster
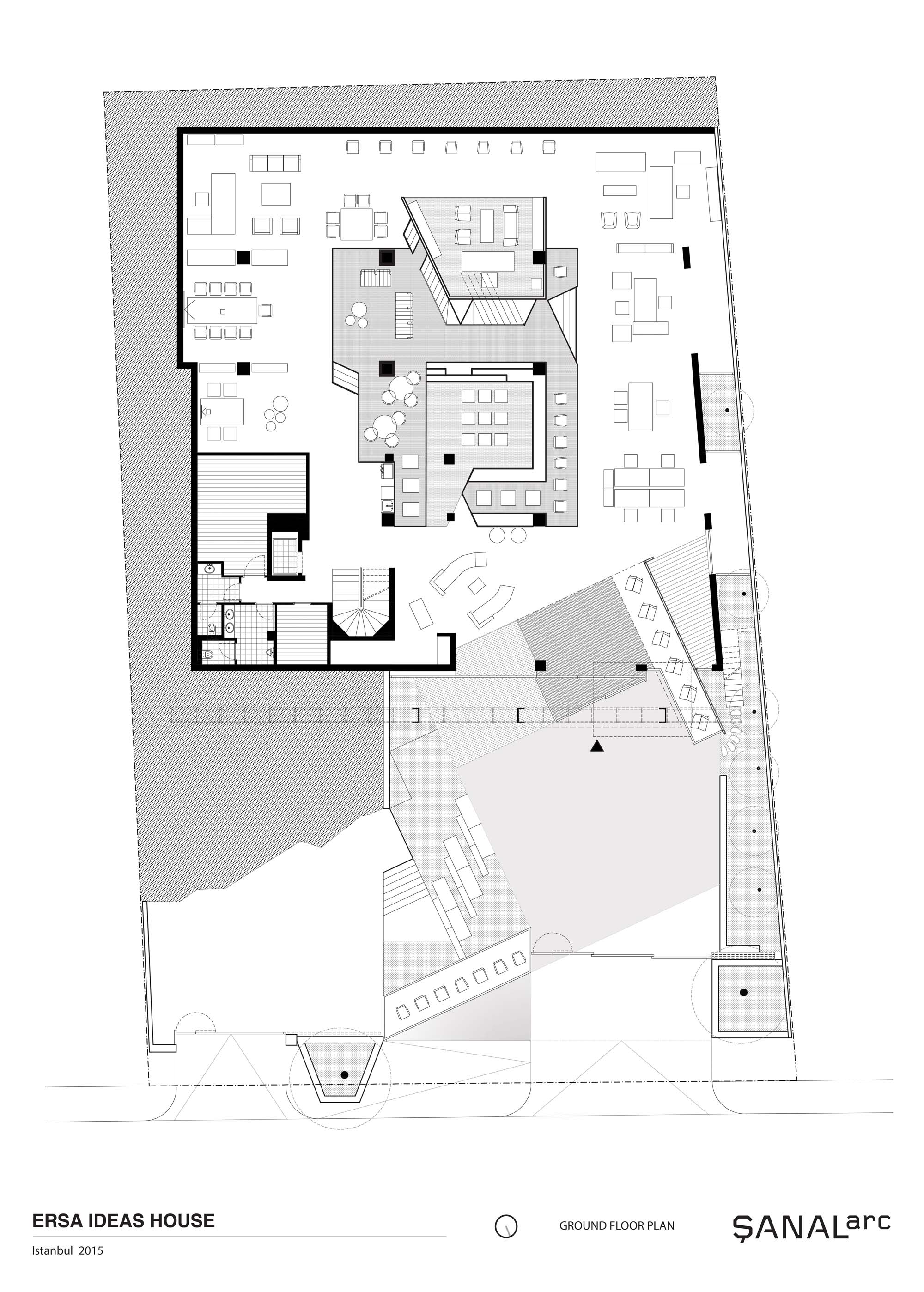
Ersa Ideas House
Proje Yeri: İstanbul, Üsküdar
Proje Ofisi: SANALarc Mimarlık, Araştırma ve Kentsel Tasarım
Proje Tipi: Mağaza / Showroom
Proje Tipi Grubu: Ticari
Tasarım Ekibi: Alexis Şanal, Murat Şanal
İşveren: Ersa Ofis Mobilyaları
Danışman: Murat Yazgan
Yardımcı: Begüm Öner, Cibeles Sanchez Llupart, Orkun Beydağı, Bassil Taleb, Matyas Skardelli, Bahar Akgün
Ana Yüklenici: MESE GRUP
Alt Yüklenici: ERSA, ELİZ, Polcon, Interface, Anıl Zemin_Forbo, VitrA
Statik Projesi: ERDEM Mühendislik
Mekanik Projesi: HERSAN Mühendislik, SMART ISTANBUL
Elektrik Projesi: SMART ISTANBUL
Çelik Projesi: E2 METAL
Fotoğraf: Şener Yılmaz Aslan
Proje Başlangıç Yılı: 2015
Proje Bitiş Yılı: 2015
İnşaat Başlangıç Yılı: 2015
İnşaat Bitiş Yılı: 2016
Toplam İnşaat Alanı: 1,390 m2