17/21
Paylaş
Resmi Orjinal Boyutunda Göster
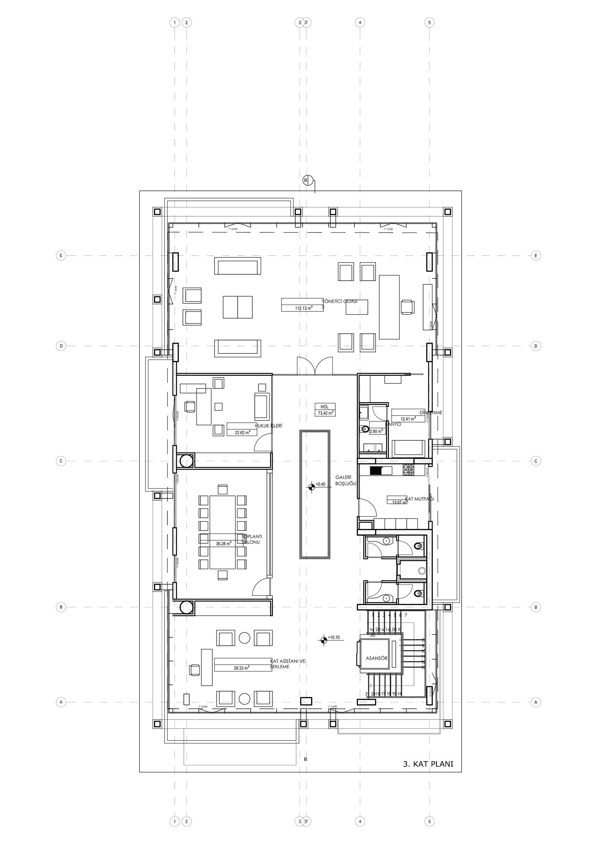
Pekerler İnşaat Genel Merkez Binası
Proje Yeri: Çankaya, Ankara
Proje Ofisi: AS Architects
Proje Tipi: Ofis
Proje Tipi Grubu: Ticari
Tasarım Ekibi: Ayşin Sevgi Karakurt
İşveren: Pekintaş Yapı
Yardımcı: Sevdil Aydoğan
Ana Yüklenici: Pekintaş Yapı
Proje Yöneticisi: Ayşin Sevgi Karakurt
Statik Projesi: İbrahim Öztürk, Yüksek Proje
Mekanik Projesi: Abdullah Bilgin
Elektrik Projesi: Koray Yücesoy, RAM Mühendislik
Fotoğraf: Fethi Mağara
Proje Başlangıç Yılı: 2014
İnşaat Başlangıç Yılı: 2016
İnşaat Bitiş Yılı: 2016
Arsa Alanı: 1,000 m²
Toplam İnşaat Alanı: 2,900 m²