17/21
Paylaş
Resmi Orjinal Boyutunda Göster
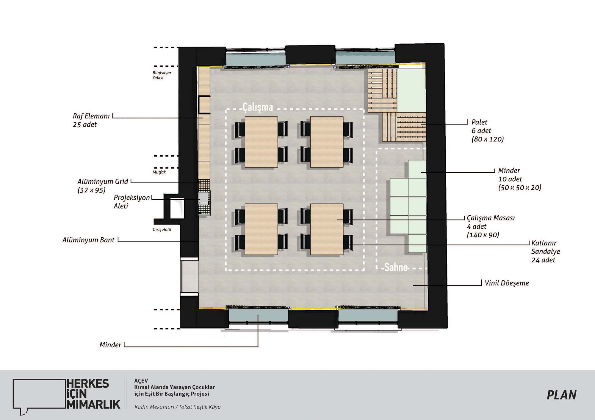
Kadın ve Çocuk Mekanları - Keşlik
Proje Yeri: Tokat, Keşlik
Proje Ofisi: Herkes İçin Mimarlık Derneği
Proje Tipi: Diğer Eğitim Yapıları
Proje Tipi Grubu: Eğitim
Tasarım Ekibi: Ceren Bek, Emre Gündoğdu, Merve Gül Özokçu, Merve Güzel, Mehmet Sarper Takkeci, Yasemin Sünbül
İşveren: Anne Çocuk Eğitim Vakfı (AÇEV)
Ana Yüklenici: Anne Çocuk Eğitim Vakfı (AÇEV)
Proje Başlangıç Yılı: 2014
Proje Bitiş Yılı: 2016
İnşaat Başlangıç Yılı: 2014
İnşaat Bitiş Yılı: 2016
Arsa Alanı: 1,050 m²
Toplam İnşaat Alanı: 58 m2