17/18
Paylaş
Resmi Orjinal Boyutunda Göster
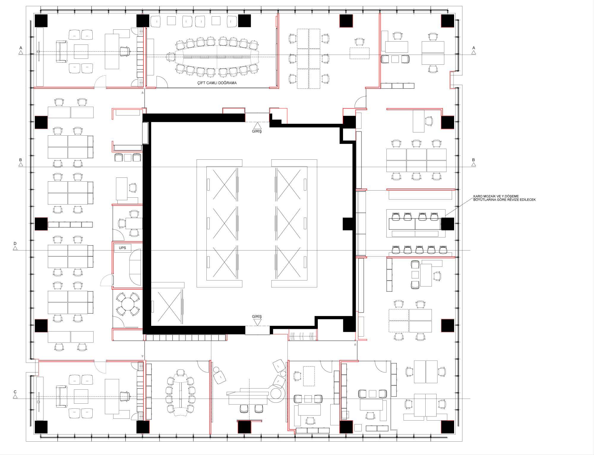
KTM Kimyevi Maddeler Ofisi
Project Location: Kadıköy, İstanbul
Project Office: A4 Mimarlık
Project Type: Offices
Proje Tipi Grubu: Commercial
Tasarım Ekibi: Sanem Yılmaz Atabek, Adil Kırkaya
Architectural Project Team: Sanem Yılmaz Atabek
Employer: KTM Kimyevi Maddeler
Ana Yüklenici: A4 Mimarlık
Projcet Manager: Sanem Yılmaz Atabek
Mechanical Project: TTG Mühendislik
Electrical Project: Tan Mühendislik
Plumbing Project: TTG Mühendislik
Construction Site Manager: Murat Duyar, İhsan Çümen
Project Start Date: 2015
Project End Date: 2016
Construction Start Date: 2015
Construction End Date: 2016
Total Construction Area: 900 m2