31/32
Paylaş
Resmi Orjinal Boyutunda Göster
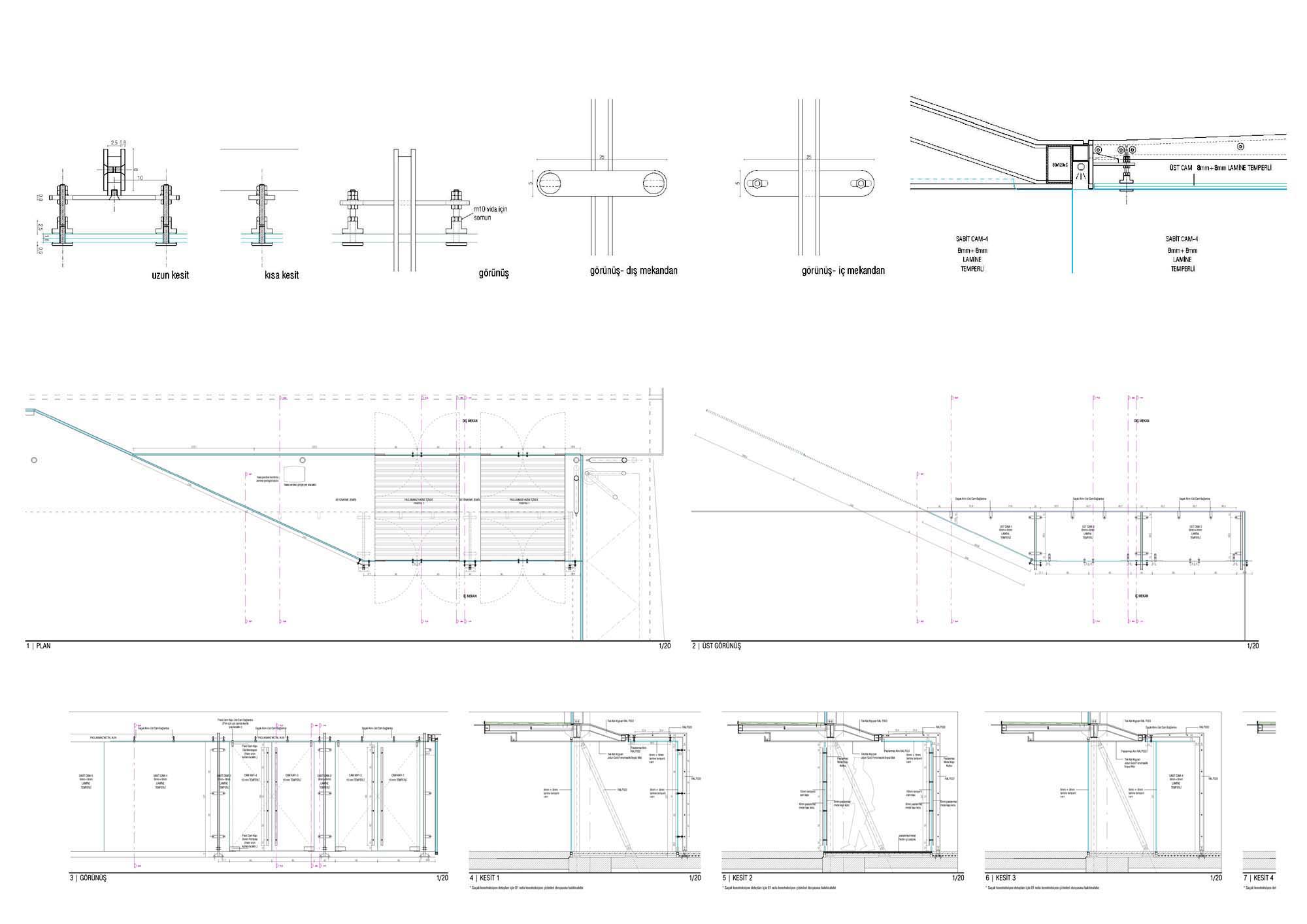
Murat Karamancı Student Center
Proje Yeri: Beşiktaş, İstanbul
Proje Ofisi: AAW Ahmet Alataş Workshop
Proje Tipi: Sosyal Tesis, Restoran / Kafe / Bar
Proje Tipi Grubu: Eğitim
Tasarım Ekibi: Ahmet Alataş, Alexander Holzmann
Mimari Proje Ekibi: Ahmet Alataş, Alexander Holzmann, Emre Açar, Yunus Özdemir, Işık Kaya, Pınar Gülpınar, Elif Güngör, İpek Kay, Çağrı Helvacıoğlu Aydoğu
İşveren: Robert Kolej
Ana Yüklenici: Siska İnşaat
Statik Projesi: Werkraum Wien
Mekanik Projesi: Akım Mühendislik
Elektrik Projesi: Emas Mühendislik
Tesisat Projesi: Akım Mühendislik
Çelik Projesi: Werkraum Wien
Fotoğraf: Ahmet Alataş
Mimari Mesleki Kontrollük: AAW Ahmet Alataş Workshop
Proje Başlangıç Yılı: 2015
Proje Bitiş Yılı: 2015
İnşaat Başlangıç Yılı: 2015
İnşaat Bitiş Yılı: 2016
Arsa Alanı: 3,400 m2
Toplam İnşaat Alanı: 1,500