10/11
Paylaş
Resmi Orjinal Boyutunda Göster
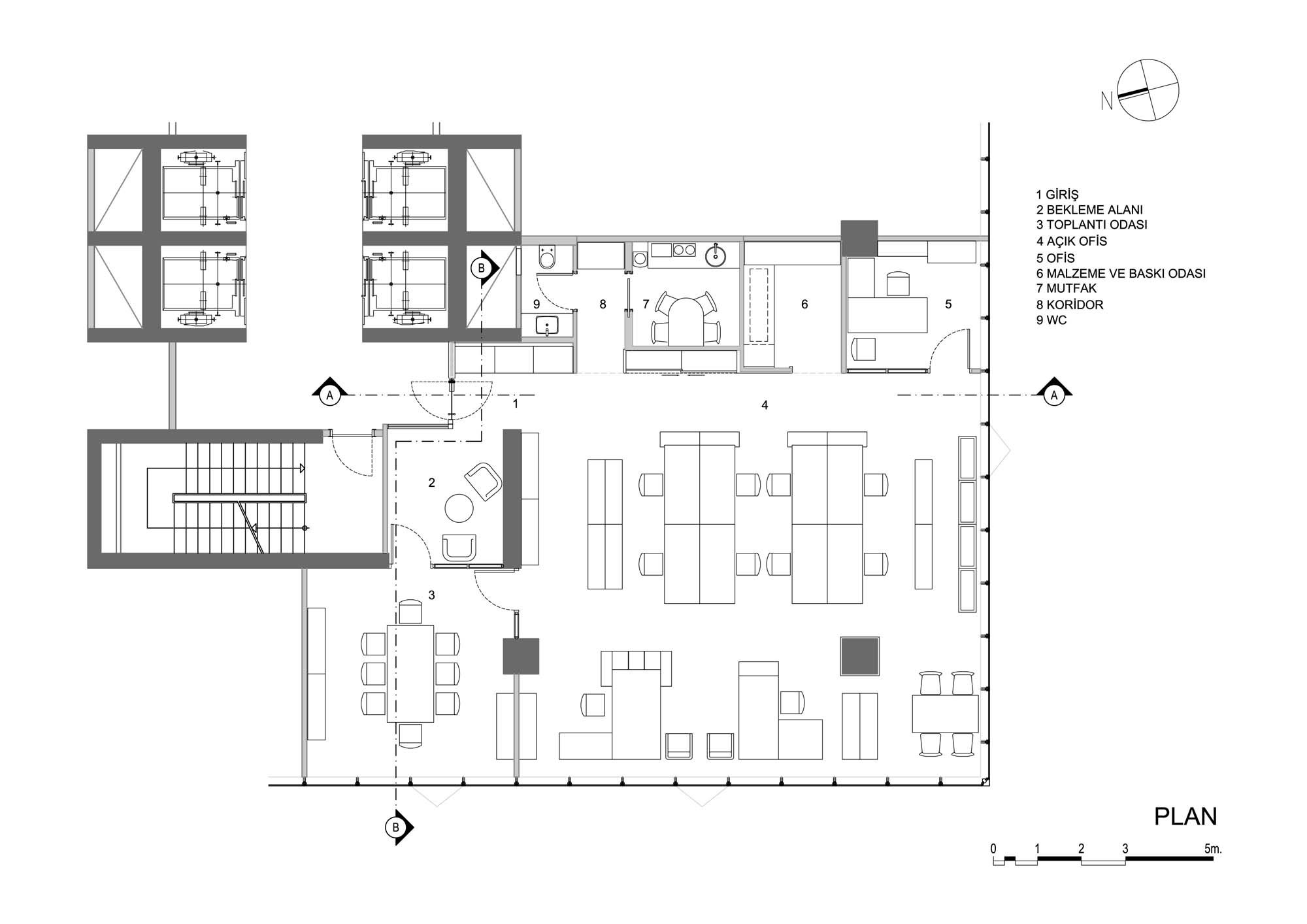
Paker Mimarlık Ofisi
Proje Yeri: Şişli, İstanbul
Proje Ofisi: Paker Mimarlık
Proje Tipi: Ofis
Proje Tipi Grubu: Ticari
Tasarım Ekibi: Sinan Paker, Özer Ali Önkal, Özgün Yılmaz, Naz Cansın Aktaş, Neslihan Karaçim
İşveren: Paker Mimarlık
Ana Yüklenici: Paker Mimarlık
Grafik Tasarım: Nazlı Garcia Paker
Mekanik Projesi: Reda İşleyen, Prokem Mühendislik
Elektrik Projesi: Yahya Tosun, Altuğ Tosun
Tesisat Projesi: Prokem Mühendislik, Reda İşleyen
Fotoğraf: Emre Ogan
Proje Başlangıç Yılı: 2015
Proje Bitiş Yılı: 2015
İnşaat Başlangıç Yılı: 2015
İnşaat Bitiş Yılı: 2016
Toplam İnşaat Alanı: 160 m2