13/13
Paylaş
Resmi Orjinal Boyutunda Göster
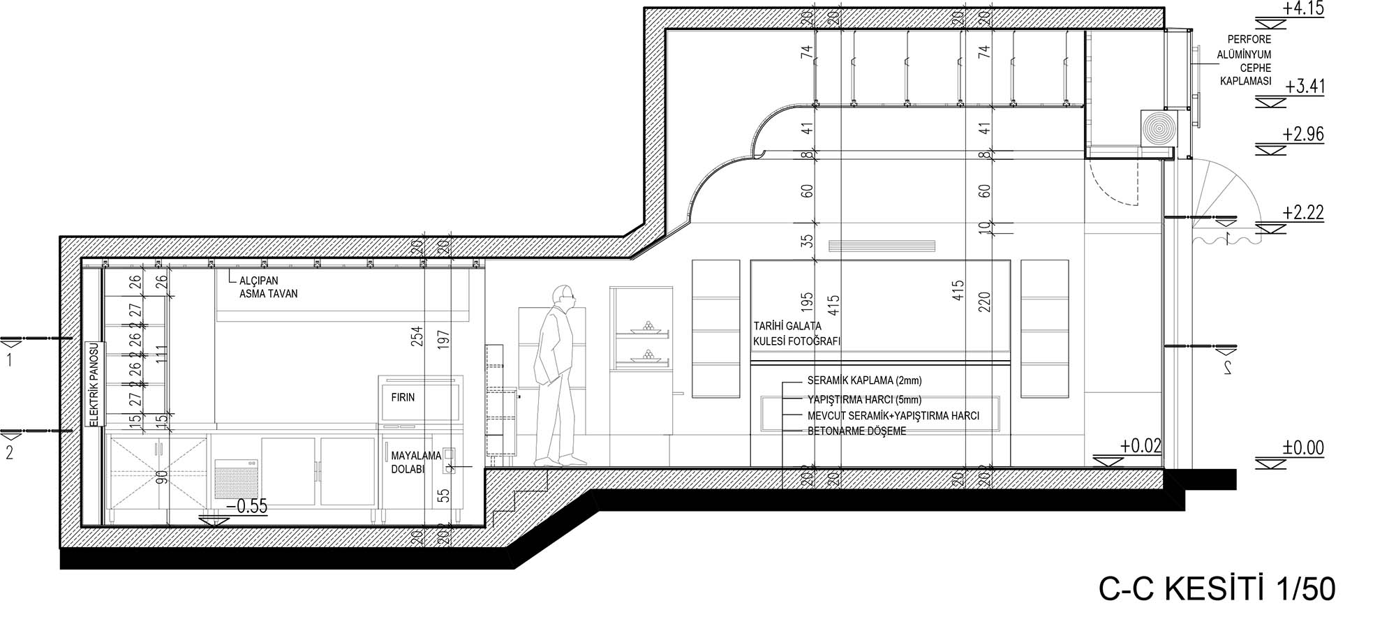
Tarihi Savoy Pastanesi Osmanbey Şubesi
Proje Yeri: Şişli, İstanbul
Proje Ofisi: Geyran Mimarlık Atölyesi
Proje Tipi: Restoran / Kafe / Bar
Proje Tipi Grubu: Ticari
Tasarım Ekibi: Kenan Geyran, Pınar Geyran
İşveren: Savoy Pastanesi
Yardımcı: Yasin Özçelik, Vartan Demirci
Ana Yüklenici: Geyran Mimarlık Atölyesi
Proje Başlangıç Yılı: 2016
Proje Bitiş Yılı: 2016
İnşaat Başlangıç Yılı: 2016
İnşaat Bitiş Yılı: 2016
Toplam İnşaat Alanı: 25 m2