4/15
Paylaş
Resmi Orjinal Boyutunda Göster
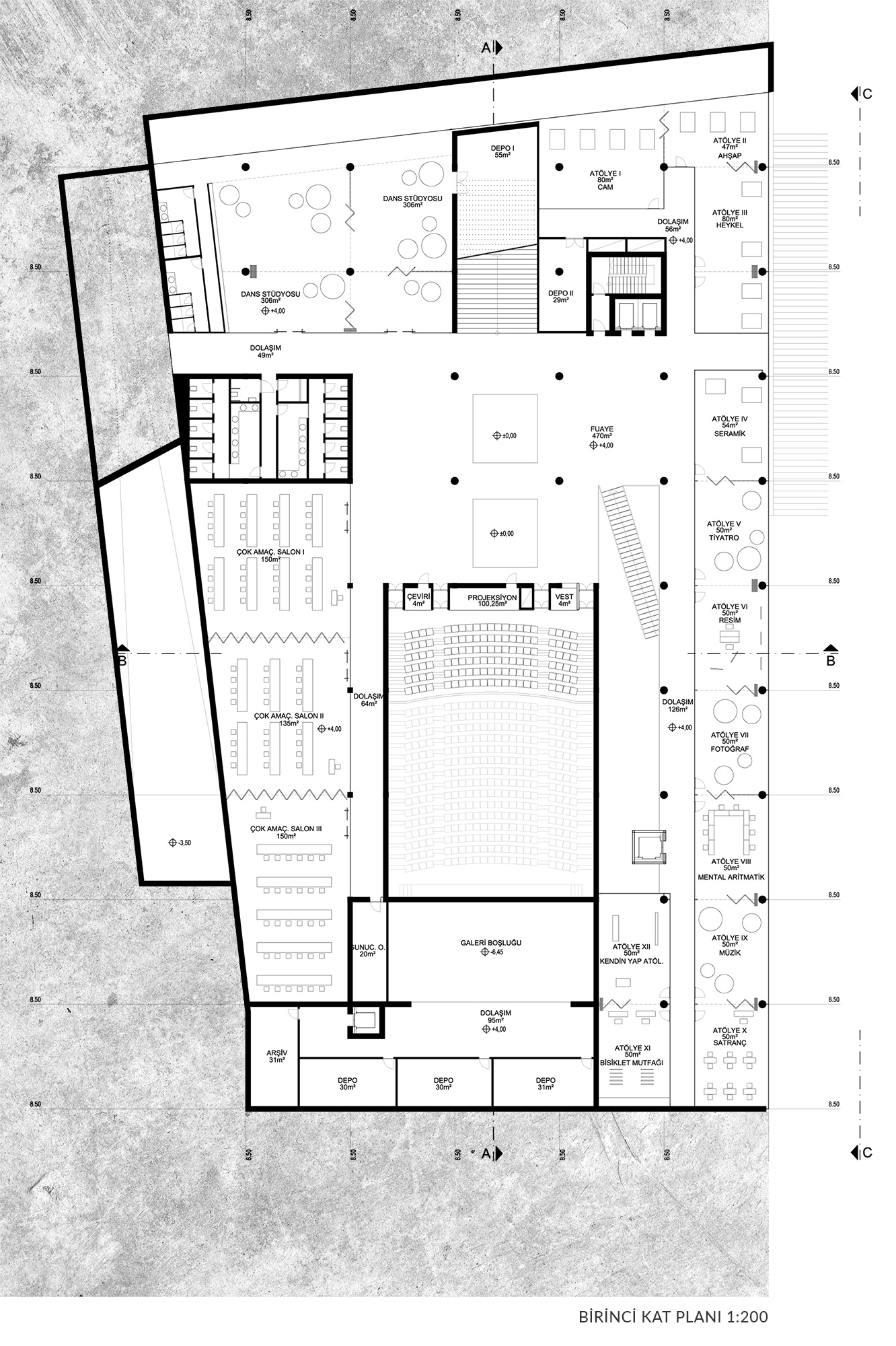
Katılımcı, Evka 3 Sosyal Merkez ve Aktarma İstasyonu Yarışması
Proje Yeri: İzmir, Bornova
Proje Ofisi: MORF
Proje Tipi: Kültür Merkezi, İstasyon / Durak
Proje Tipi Grubu: Katılımcı
Tasarım Ekibi: Serkan Yetgin, Yeşil Özerdem, Metin Tuncel, Murat Ergin, Günseli Özdil
Yardımcı: Akın Şahin