35/36
Paylaş
Resmi Orjinal Boyutunda Göster
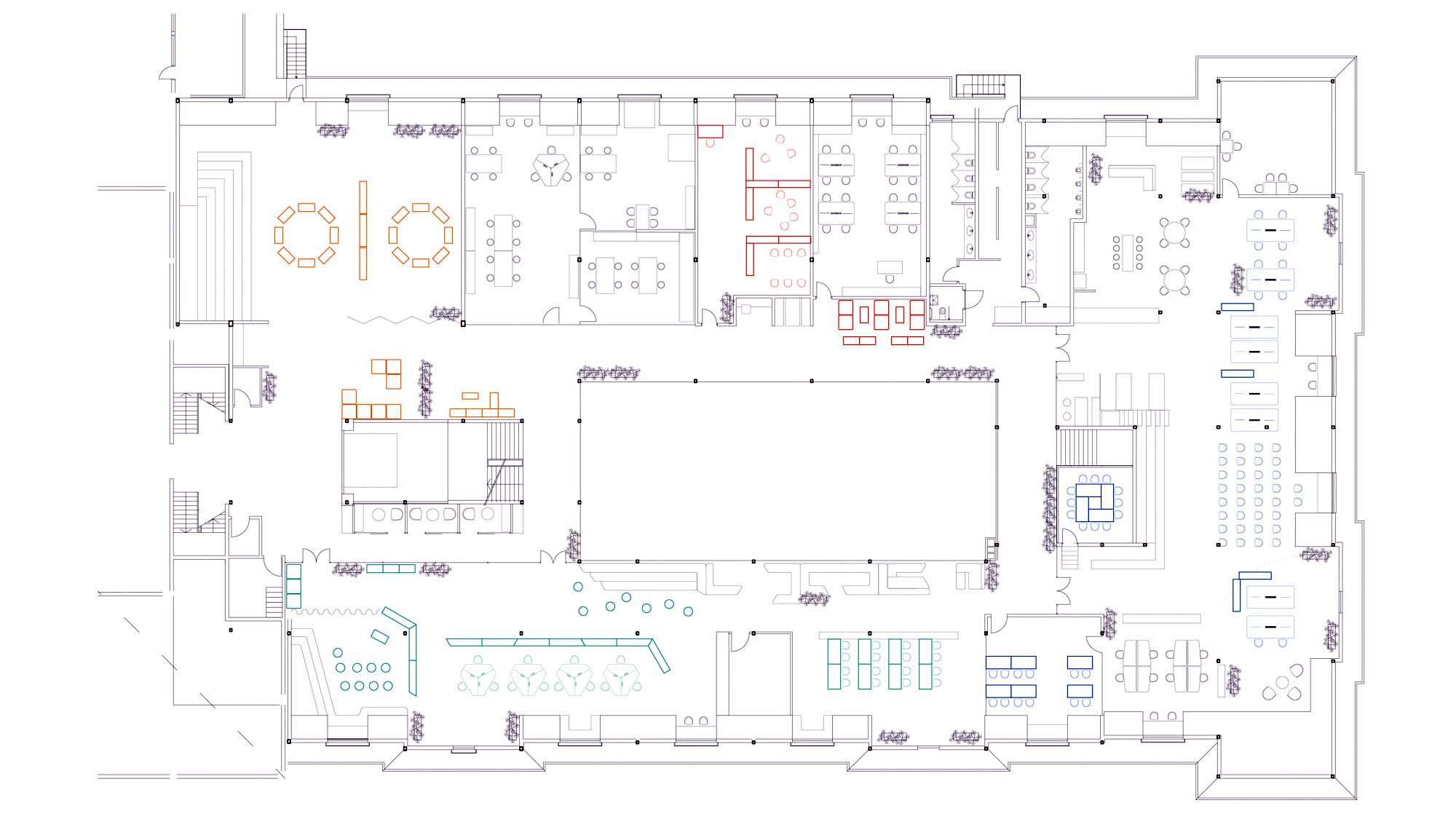
Sezin Okulları Çatı Katı Projesi
Proje Yeri: İstanbul, Çekmeköy
Proje Ofisi: ATÖLYE
Proje Tipi: Diğer Eğitim Yapıları
Proje Tipi Grubu: Eğitim
Tasarım Ekibi: Berna Erenoğlu, Engin Ayaz, Nesile Yalçın, Begüm Ural, Elif Karaköse
İşveren: Özel Sezin Okulu
Yardımcı: Ali Arslan, Lola Kotilov
Proje Yöneticisi: Berna Erenoğlu
Statik Projesi: Doruk Mühendislik
Mekanik Projesi: Total Mühendislik
Elektrik Projesi: Sinapsen Mühendislik
Tesisat Projesi: Total Mühendislik
Çelik Projesi: Doruk Mühendislik
Akustik Danışmanı: Saf Mühendislik
Yangın Tahliye Projesi: Serdar Selamet
Yangın Güvenlik Danışmanı: Serdar Selamet
Fotoğraf: Yercekim Mimari Fotograf
Proje Başlangıç Yılı: 2016
Proje Bitiş Yılı: 2016
İnşaat Başlangıç Yılı: 2016
İnşaat Bitiş Yılı: 2016
Toplam İnşaat Alanı: 1,700 m2