6/11
Paylaş
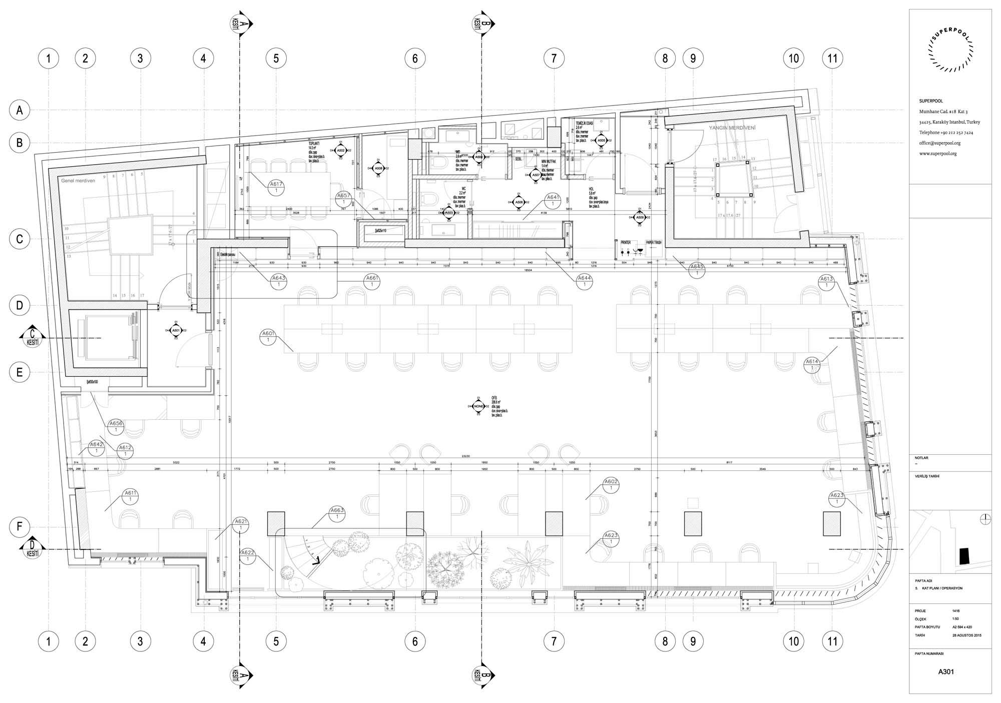
Resmi Orjinal Boyutunda Göster
TEMA Vakfı Genel Müdürlüğü İç Mekan Projesi
Proje Yeri: İstanbul, Şişli
Proje Ofisi: Superpool
Proje Tipi: Ofis
Proje Tipi Grubu: Kamu
Tasarım Ekibi: Selva Gürdoğan, Gregers Tang Thomsen, Selva Aksoy, Zehra Nur Eliaçık, Nikitas Gkavogiannis, Derya İyikul
İşveren: TEMA Vakfı
Danışman: Memed Erdener, Korhan Şişman, Planlux Aydınlatma Tasarımı, Cemal Şahinler, Prota Mühendislik, Ahmet Boybada, Deniz Proje, Fulya Kara, Sercan Yücetepe, Koleksiyon Mobilya, Pelin Özgen, Kalebodur
Ana Yüklenici: Tufan İnşaat
Alt Yüklenici: Koleksiyon Mobilya, Kalebodur
Peyzaj Mimarlığı: Superpool, TEMA Vakfı
Proje Yöneticisi: Selva Gürdoğan, Gregers Tang Thomsen
Aydınlatma Projesi: Planlux Aydınlatma Tasarımı
Mekanik Projesi: Deniz Proje
Elektrik Projesi: Prota Mühendislik
Tesisat Projesi: Deniz Proje
Fotoğraf: Sahir Uğur Eren
Mimari Mesleki Kontrollük: Superpool, Derya İyikul
Şantiye Yöneticisi: Turan İnşaat, Hasan Pehlivanlar, Bora Pehlivanlar
Proje Başlangıç Yılı: 2015
Proje Bitiş Yılı: 2016
İnşaat Başlangıç Yılı: 2016
İnşaat Bitiş Yılı: 2016
Toplam İnşaat Alanı: 900 m2