9/29
Paylaş
Resmi Orjinal Boyutunda Göster
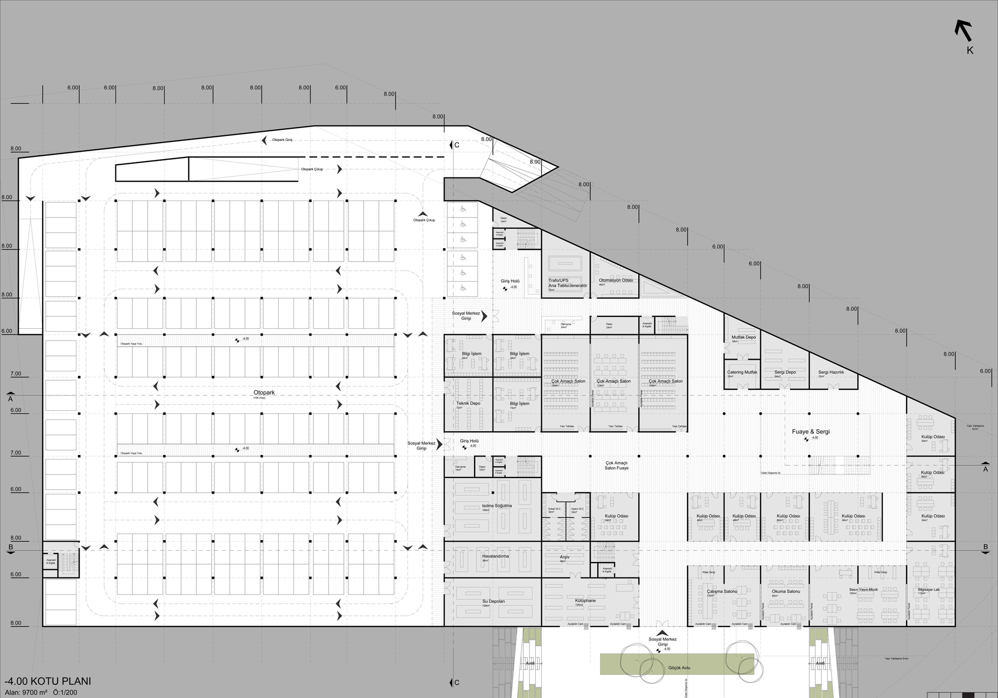
Katılımcı (MEES Mimarlık), Evka 3 Sosyal Merkez ve Aktarma İstasyonu Yarışması
Proje Yeri: İzmir, Bornova
Proje Ofisi: MEES Mimarlık
Proje Tipi: Kültür Merkezi, İstasyon / Durak
Proje Tipi Grubu: Katılımcı
Tasarım Ekibi: Mete Keskin, Esra Yılmaz Keskin, Dünya Dicle
Danışman: Öykü Kocaman, Bora Kaçar