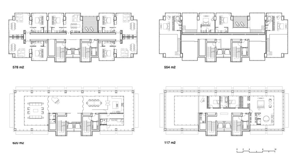
Planlar
11/14
Paylaş
Resmi Orjinal Boyutunda Göster
Loft Bahçe
Project Location: Levent, İstanbul
Project Office: Tabanlıoğlu Mimarlık
Project Type: Housing Complex
Proje Tipi Grubu: Konut
Tasarım Ekibi: Melkan Gürsel, Murat Tabanlıoğlu
Architectural Project Team: Hacer Akgün, Volkan Lokumcu, Eda Lerzan Tunçbil, Kaan Keleş, Süleyman Akkaş, Elena Pittalis
Employer: Akfen GYO, Akfen Gayrimenkul Yatırımları
Ana Yüklenici: Akfen İnşaat
Structural Project: Cema Mühendislik
Mechanical Project: Moskay Mühendislik
Electrical Project: Arma Mühendislik
Construction Start Date: 2007
Construction End Date: 2010
Building Plot Area: 1759 m2
Total Construction Area: 17990 m2