9/16
Paylaş
Resmi Orjinal Boyutunda Göster
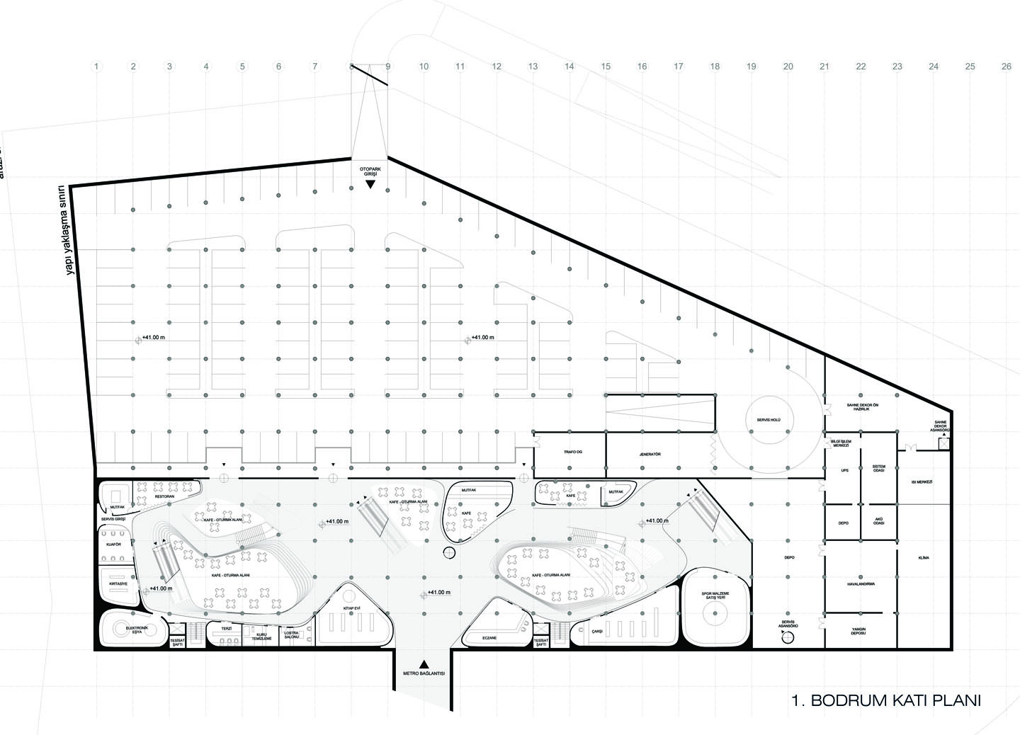
Katılımcı, Evka 3 Sosyal Merkez ve Aktarma İstasyonu Yarışması
Proje Yeri: İzmir, Bornova
Proje Tipi: Kültür Merkezi, İstasyon / Durak
Proje Tipi Grubu: Katılımcı
Tasarım Ekibi: Tolga Hazan
Yardımcı: Tolga Ufuk Yıldırım, Berk Mutlu, Muhammad Amirshoev, Melike Boz, Duygu Gökoğlu, Efil Erdoğan, Ceylim Yıldırım, Adel Gürel, Sevin Ceren Aray, Ahmet Karayağlı