13/18
Paylaş
Resmi Orjinal Boyutunda Göster
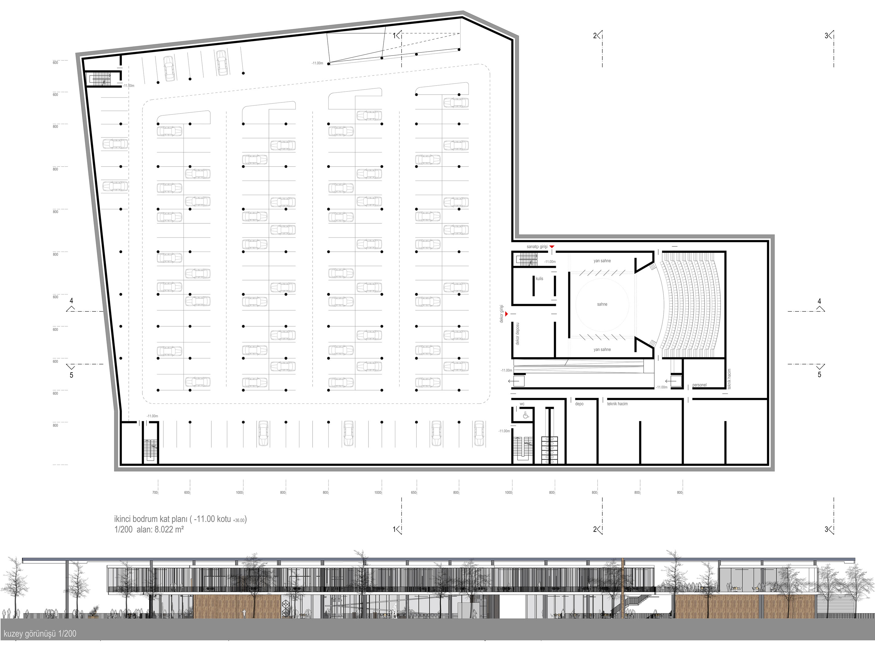
1. Ödül, Evka 3 Sosyal Merkez ve Aktarma İstasyonu Yarışması
Proje Yeri: İzmir, Bornova
Proje Ofisi: Kolektif Mimarlar
Proje Tipi: Kültür Merkezi, İstasyon / Durak
Proje Tipi Grubu: 1. Ödül
Tasarım Ekibi: Sıddık Güvendi, Barış Demir, Oya Eskin Güvendi
Danışman: Özge Dominguez Perez, Mehmet Ali Yılmaz
Yardımcı: Büşra Temiz, Ece Abdioğlu, Oğuzhan Yılmaz, Deniz Söy