6/8
Paylaş
Resmi Orjinal Boyutunda Göster
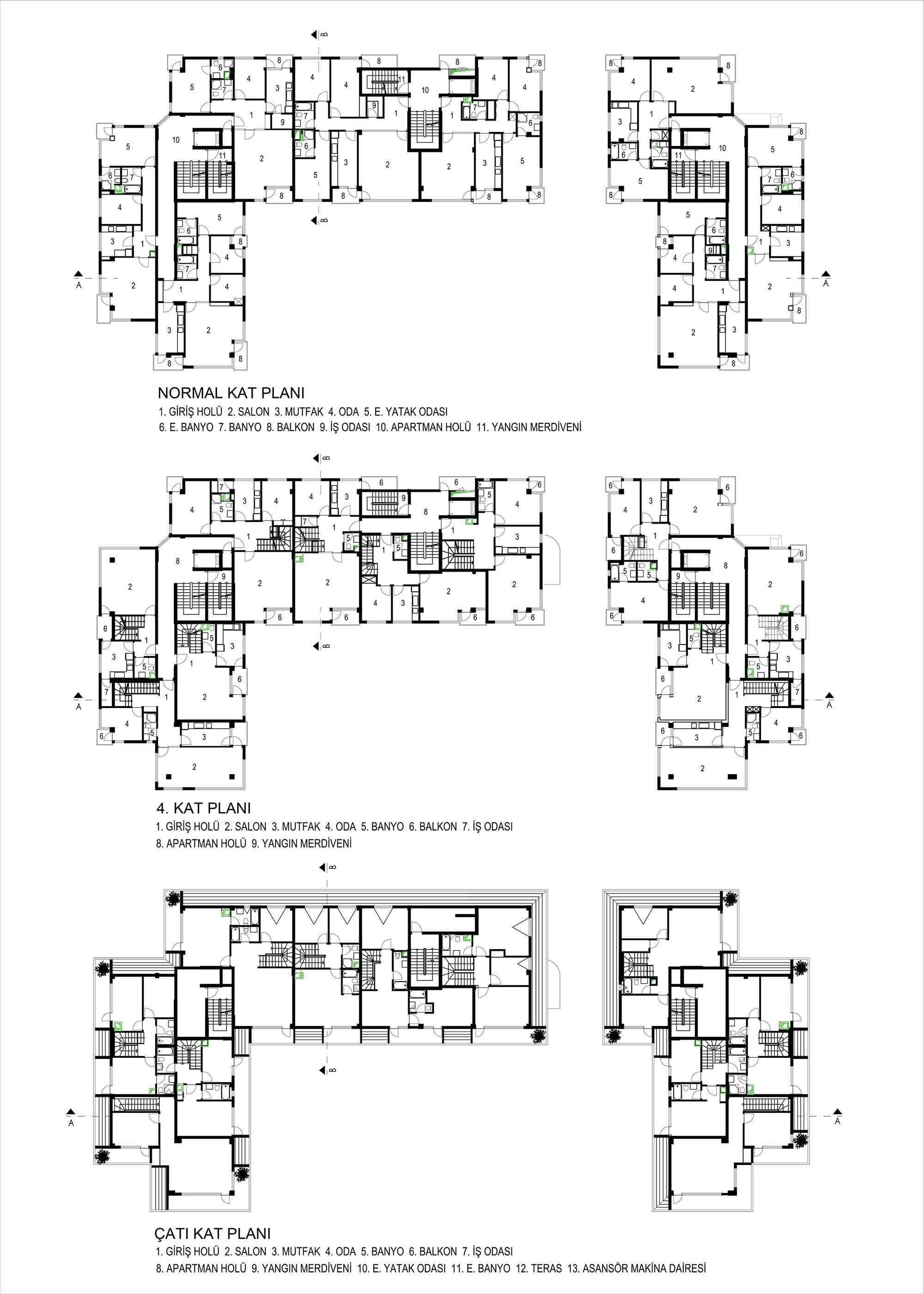
Gürpınar Mesa Konutları
Proje Yeri: Beylikdüzü, İstanbul
Proje Ofisi: A/Y Mimarlık
Proje Tipi: Konut Sitesi / Grubu
Proje Tipi Grubu: Konut
Tasarım Ekibi: Abbas Hacıömeroğlu, Yalçın Türkdoğan
İşveren: Mesa Metal
Yardımcı: Yekta Alpaslan, Gamze Çiçekoğlu, Volkan Kanlıyer
Proje Başlangıç Yılı: 201, 2016
Proje Bitiş Yılı: 2016
Arsa Alanı: 2,980 m²
Toplam İnşaat Alanı: 9,200 m²