16/21
Paylaş
Resmi Orjinal Boyutunda Göster
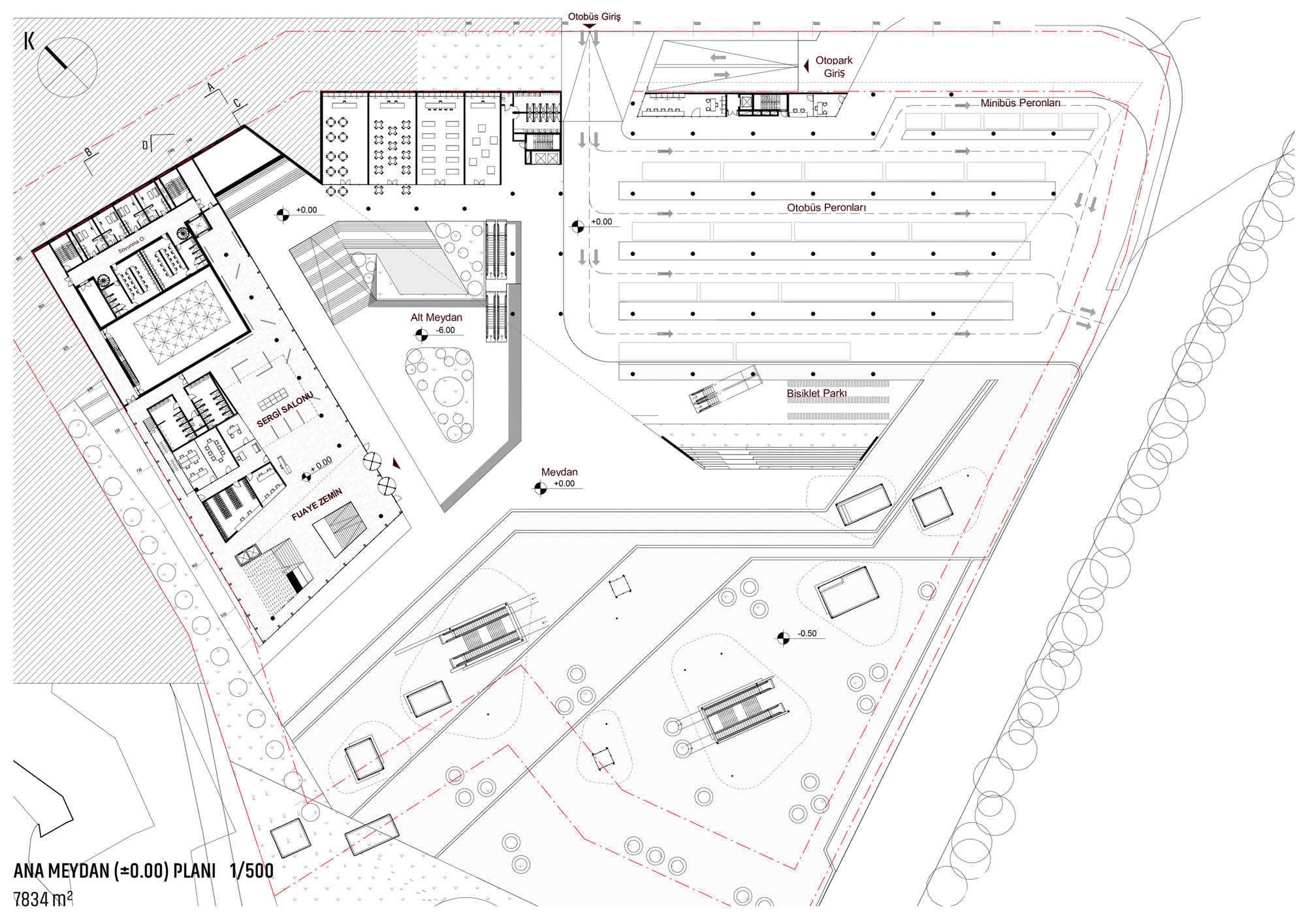
Katılımcı (MuuM), Evka 3 Sosyal Merkez ve Aktarma İstasyonu Yarışması
Proje Yeri: İzmir, Bornova
Proje Tipi: Kültür Merkezi, İstasyon / Durak
Proje Tipi Grubu: Katılımcı
Tasarım Ekibi: Murat Aksu, Umut İyigün, Cüneyt Şeker, Nezahat Melis Eraydın
Danışman: Abuzer Sarı, Onur Yüzer
Yardımcı: David Rato, Ayşe Selda Turan, Makhamat Rakhmanali Uulu, Aycan Yılmaz, Omar Araar, Anday Bodur, Çağlan Çelebi
Maket: Murat Küçük, Hasan Hocaoğlu, Murat İnalpulat