7/7
Paylaş
Resmi Orjinal Boyutunda Göster
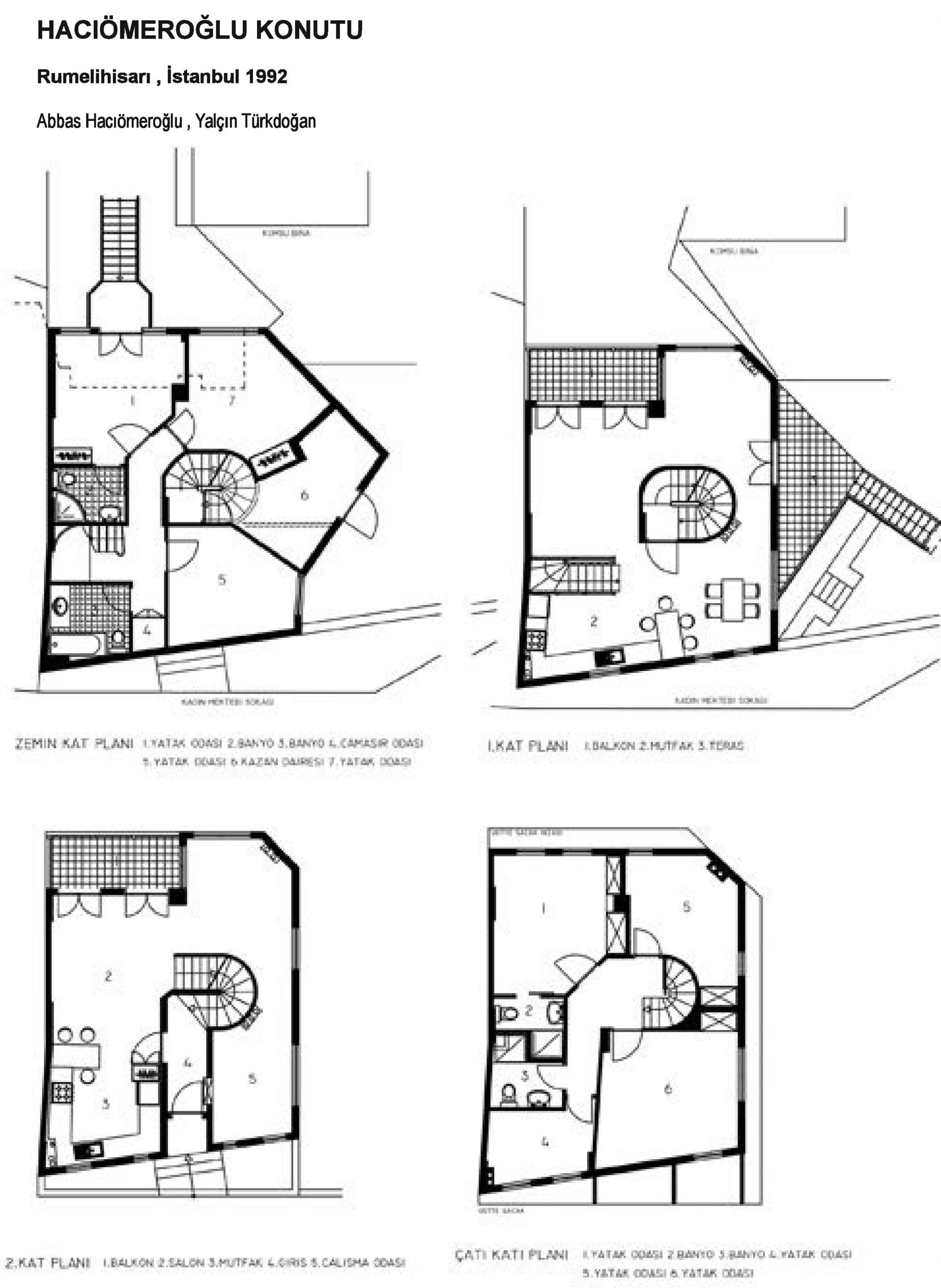
Hacıömeroğlu Konutu
Proje Yeri: Sarıyer, İstanbul
Proje Ofisi: A/Y Mimarlık
Proje Tipi: Tek Ev / Villa
Proje Tipi Grubu: Konut
Tasarım Ekibi: Abbas Hacıömeroğlu, Yalçın Türkdoğan
Statik Projesi: Akın Mühendislik
Mekanik Projesi: İpek Mühendislik
Elektrik Projesi: Odak Mühendislik
Proje Başlangıç Yılı: 1992
Proje Bitiş Yılı: 1993
İnşaat Başlangıç Yılı: 1993
İnşaat Bitiş Yılı: 1994
Toplam İnşaat Alanı: 400 m2