8/10
Paylaş
Resmi Orjinal Boyutunda Göster
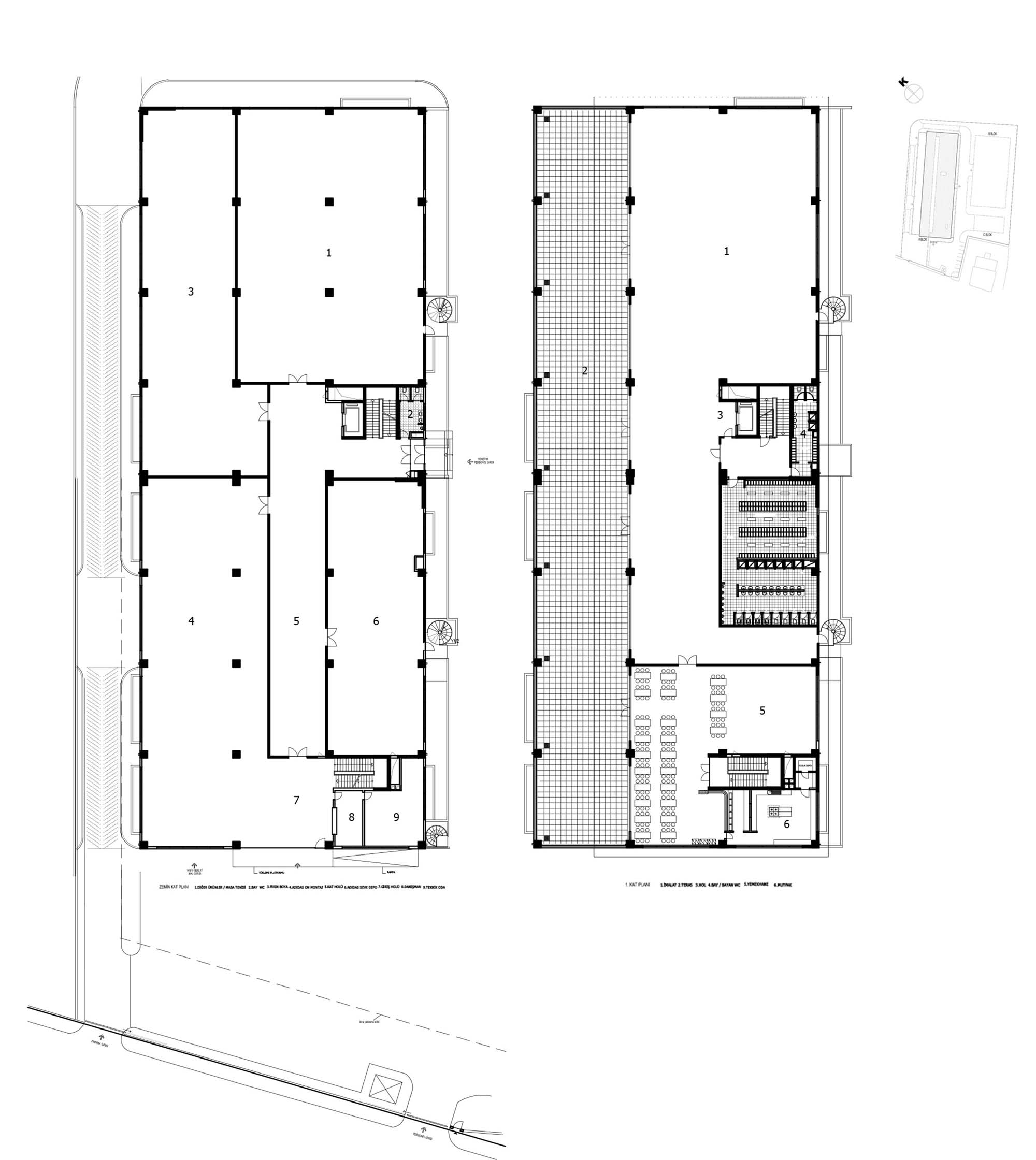
KBS GEPOSB Fabrika Binaları A B Bloklar
Project Location: Gebze, Kocaeli (İzmit)
Project Office: A/Y Mimarlık
Proje Tipi Grubu: Endüstriyel
Tasarım Ekibi: Abbas Hacıömeroğlu, Yalçın Türkdoğan
Employer: KBS Kalıp Bağlama Sistemleri
Yardımcı: Ertan Onar, Özlem Bağdiken
Structural Project: Artaş Mühendislik
Photography: Fabrika
Project Start Date: 2005
Project End Date: 2006
Construction Start Date: 2006
Construction End Date: 2007
Building Plot Area: 9,200 m²
Total Construction Area: 11,600 m²