9/10
Paylaş
Resmi Orjinal Boyutunda Göster
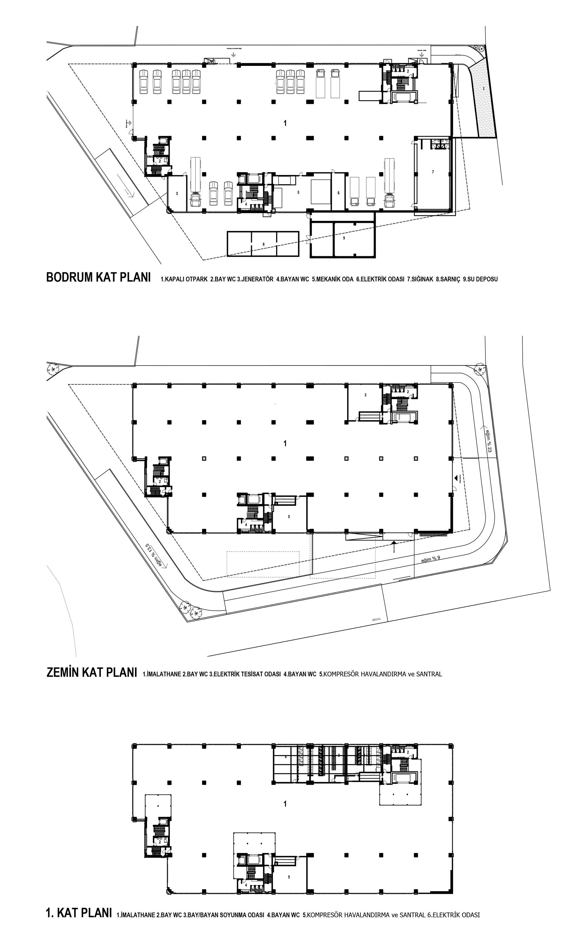
KBS GEPOSB Fabrika Binaları (D Blok)
Project Location: Gebze, Kocaeli (İzmit)
Project Office: A/Y Mimarlık
Project Type: Fabrika
Proje Tipi Grubu: Endüstriyel
Tasarım Ekibi: Abbas Hacıömeroğlu, Yalçın Türkdoğan
Employer: KBS Kalıp Bağlama Sistemleri
Yardımcı: Mehpare Yıldırım Tural, Damla Demirkan
Project Start Date: 2013
Project End Date: 2014
Construction Start Date: 2015
Construction End Date: 2016
Building Plot Area: 6,800 m2
Total Construction Area: 12,500 m2