5/8
Paylaş
Resmi Orjinal Boyutunda Göster
KBSolar Yeşil Bina
Proje Yeri: Gebze, İstanbul
Proje Ofisi: A/Y Mimarlık
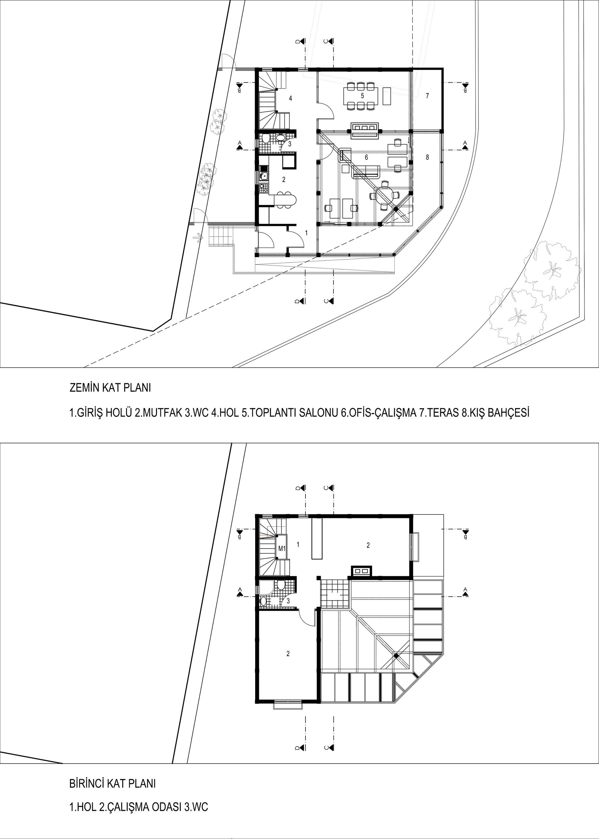
Proje Tipi: Ofis, Ar-Ge Binası
Proje Tipi Grubu: Endüstriyel
Tasarım Ekibi: Abbas Hacıömeroğlu, Yalçın Türkdoğan
İşveren: KBS Kalıp Bağlama Sistemleri
Yardımcı: Gamze Çiçekoğlu, Yekta Alpaslan, Volkan Kanlıyer
Statik Projesi: Artaş Mühendislik
Mekanik Projesi: Eko Proje Tasarım
Elektrik Projesi: GEO Elektrik Mühendislik
Proje Başlangıç Yılı: 2014
Proje Bitiş Yılı: 2015
İnşaat Başlangıç Yılı: 2015
Arsa Alanı: 6,830 m²
Toplam İnşaat Alanı: 200 m2