4/4
Paylaş
Resmi Orjinal Boyutunda Göster
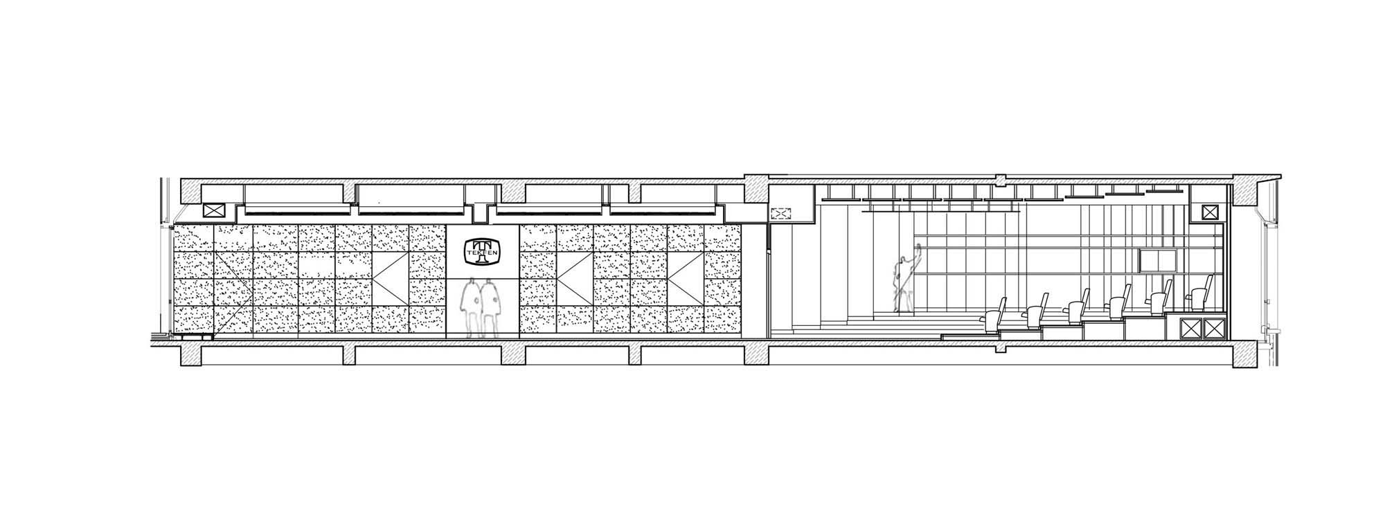
Tekfen Tower Konser Salonu
Project Location: Şişli, İstanbul
Project Office: A/Y Mimarlık
Project Type: Concert Hall
Proje Tipi Grubu: Kültür
Tasarım Ekibi: Abbas Hacıömeroğlu, Yalçın Türkdoğan
Employer: Tekfen Holding
Yardımcı: Buğra Güler, Aytaç Engin Güloğlu
Project Start Date: 2003
Project End Date: 2003
Construction Start Date: 2003
Construction End Date: 2003
Total Construction Area: 600 m²