9/16
Paylaş
Resmi Orjinal Boyutunda Göster
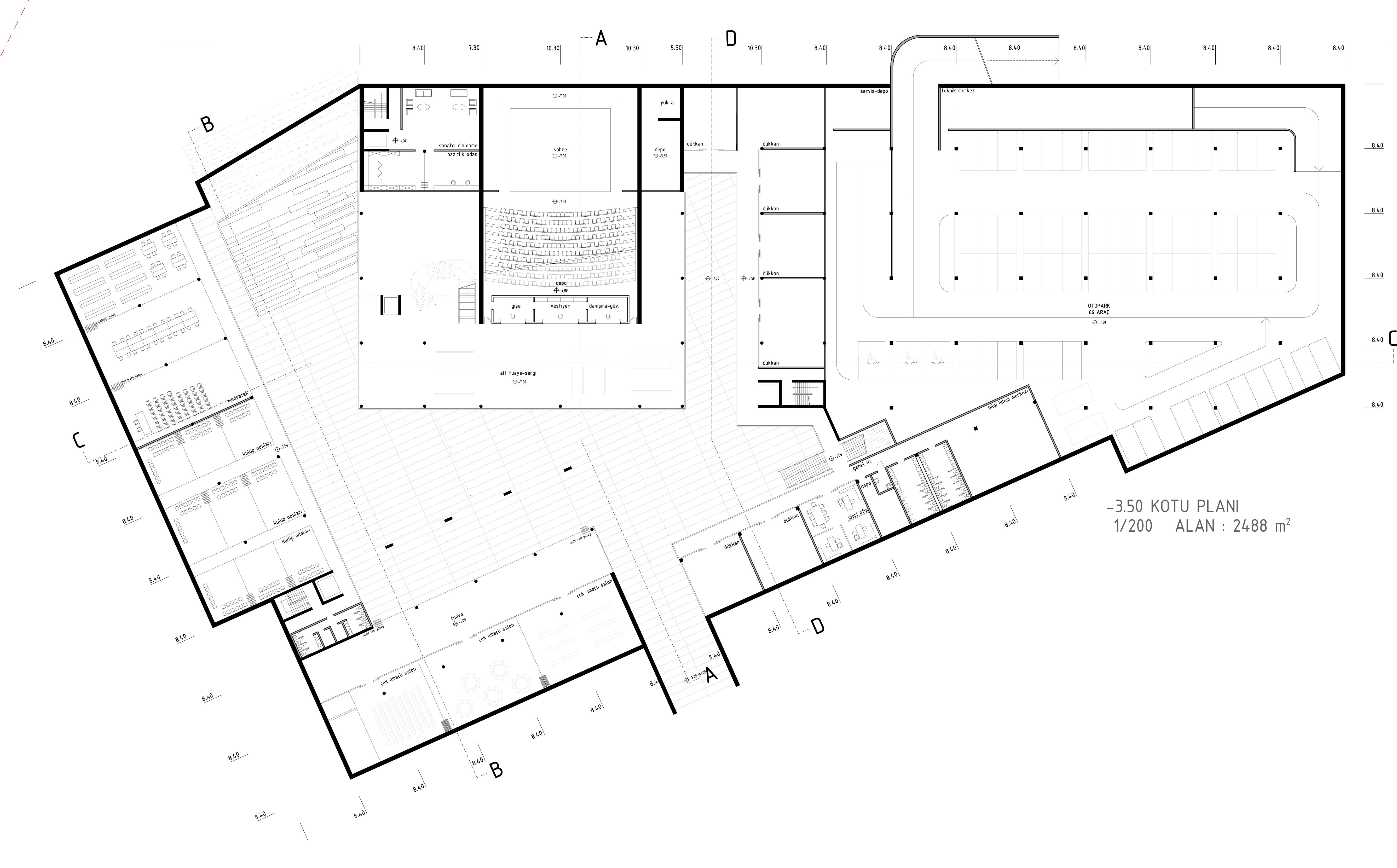
Katılımcı, Evka 3 Sosyal Merkez ve Aktarma İstasyonu Yarışması
Project Location: İzmir, Bornova
Project Type: Cultural Center, Station / Stop
Proje Tipi Grubu: Katılımcı
Tasarım Ekibi: Kadir Uyanık, Dicle B. Özdemir
Consultant: Halil Kabaca, Ozan Bilal, Sümeyra Elma
Yardımcı: Ahmet Özer, Bedirhan Koç