18/23
Paylaş
Resmi Orjinal Boyutunda Göster
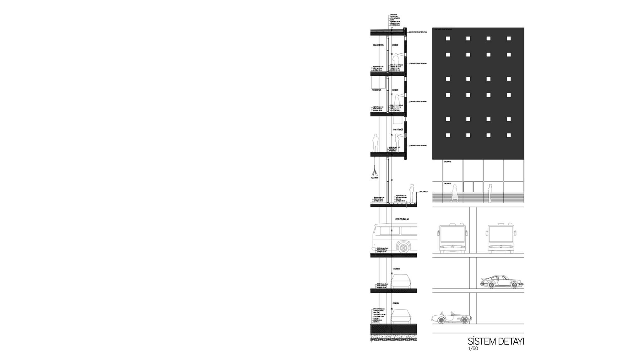
Tamirci Architects Evka 3 Sosyal Merkez ve Aktarma İstasyonu Yarışması
Proje Yeri: İzmir, Bornova
Proje Ofisi: Tamirci Architects
Proje Tipi: İstasyon / Durak, Kültür Merkezi
Proje Tipi Grubu: Katılımcı
Tasarım Ekibi: Can Tamirci, Ömer Faruk Önel, Fuat Arabacı, Hüseyin Aslan
Danışman: Ali Güzel, Melih Vahidymarian, Abuzer Sarı, Başak Taş Özdemir
Yardımcı: Gizem Aşıcı, Zeliha Öztürk, Özge Uzunyayla, Seray Nergiz