32/36
Paylaş
Resmi Orjinal Boyutunda Göster
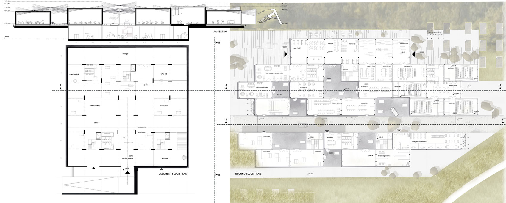
2. Ödül, Bandırma Tasarım Parkı Yarışması
Project Location: Balıkesir, Bandırma
Project Type: Other Education Buildings, Hotel / Motel, Park
Proje Tipi Grubu: 2. Ödül
Tasarım Ekibi: Nilüfer Kozikoğlu, Azime Tezer, Ebru Erbaş Gürler, Nazife Tuğçe Onuk, Burcu Altun, İzel Beşikci, N. Yalın Öcal, Bilge Aydın, Ebru Satılmış, Merve Karadaban, Adnan Kaplan, Nuran Altun, Gizem Ezgi Kurangil
Yardımcı: Cem Eren Güven, Pınar Geçkili, Gerçek Annaniyazov, Ezgi Umut Türkoğlu, Turkan Alp Önsal, Hasan Agah Erkan, Berk Arinç, Zümra Okursoy, Gizem Akgün, Aydan Aslan