9/10
Paylaş
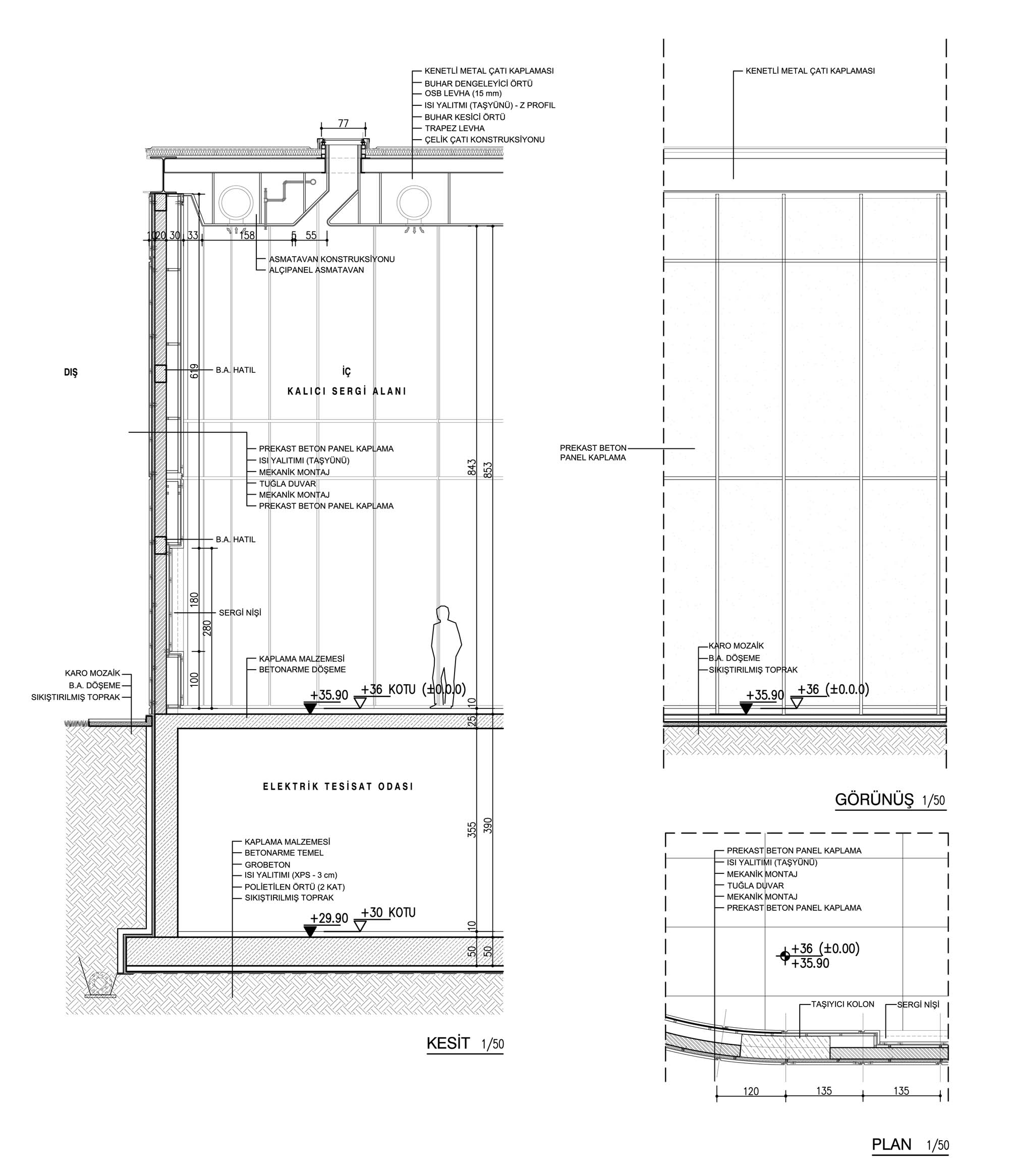
Resmi Orjinal Boyutunda Göster
Troya Müzesi Serbest Katılımlı, Tek Aşamalı, Ulusal Mimari Proje Yarışması
Proje Yeri: Çanakkale
Proje Ofisi: Açık Mimarlık ve Tasarım Stüdyosu
Proje Tipi: Müze
Proje Tipi Grubu: Katılımcı
Tasarım Ekibi: Elif Ela Güneş, İlkay Kılınç, Funda Erdemli
İşveren: Çanakkale Belediyesi
Proje Başlangıç Yılı: 2012
Proje Bitiş Yılı: 2012
Arsa Alanı: 5,320 m2
Toplam İnşaat Alanı: 11,321 m2