16/18
Paylaş
Resmi Orjinal Boyutunda Göster
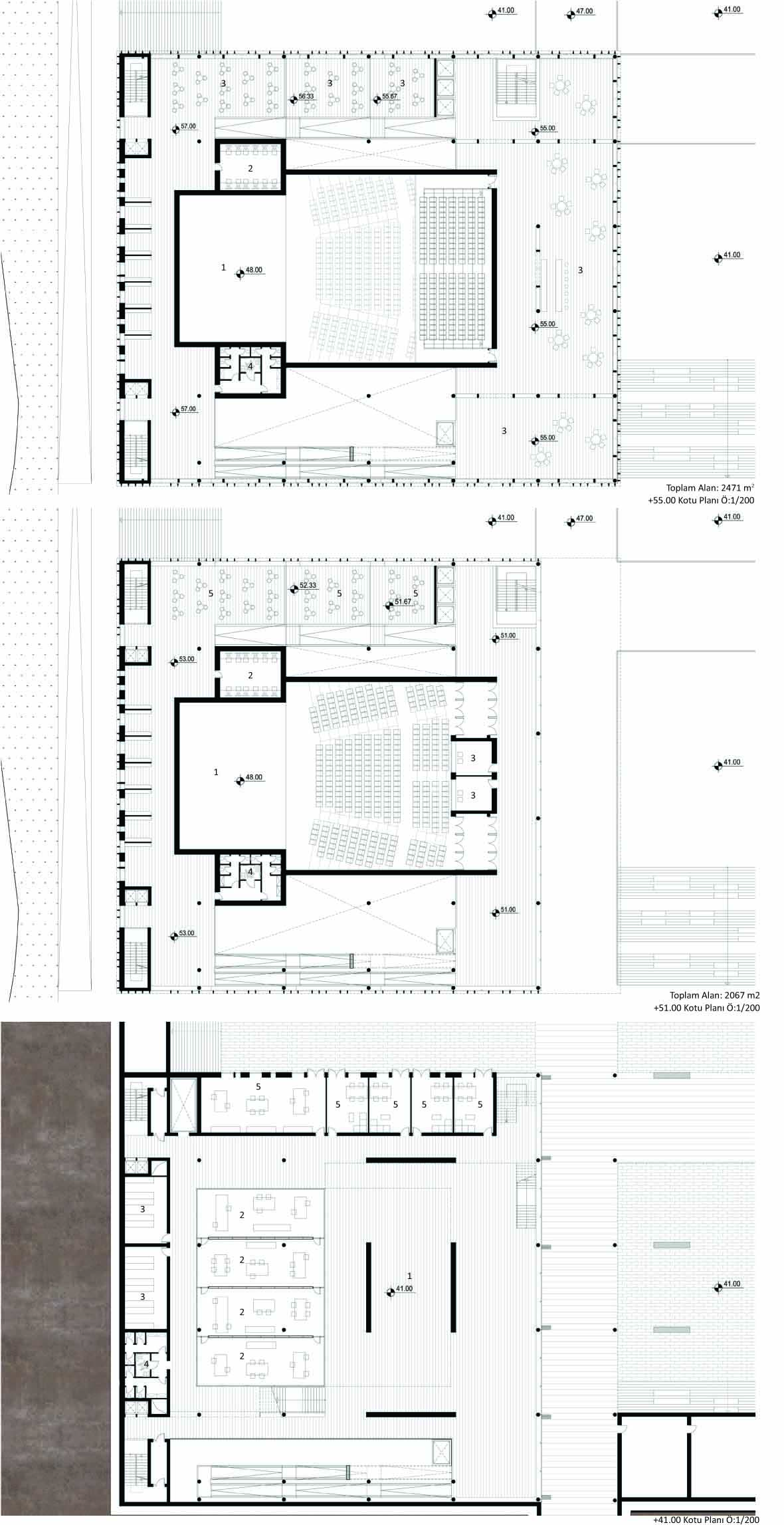
Katılımcı, Evka 3 Sosyal Merkez ve Aktarma İstasyonu Yarışması
Proje Yeri: İzmir, Bornova
Proje Ofisi: Atelye70 Planners and Architects
Proje Tipi: Kültür Merkezi, İstasyon / Durak
Proje Tipi Grubu: Katılımcı
Tasarım Ekibi: Doğu Kaptan, Fatma Gençdoğuş, Seda Sultansu, Başar Tosun, Deniz Gürsu, Buse Katana, Ahmet Çimen, Erkan Göray, Deniz Akyalçın, Hüseyin Polat, Erim Gürdal, Emre Uzer
Danışman: Marco Lombardini, Marco Biozzi, Mario Seccia, Breogan Sanchez, Hüseyin Kaptan, Yonca Temizkan