Araştırma Müdürlüğü
24/53
Paylaş
Resmi Orjinal Boyutunda Göster
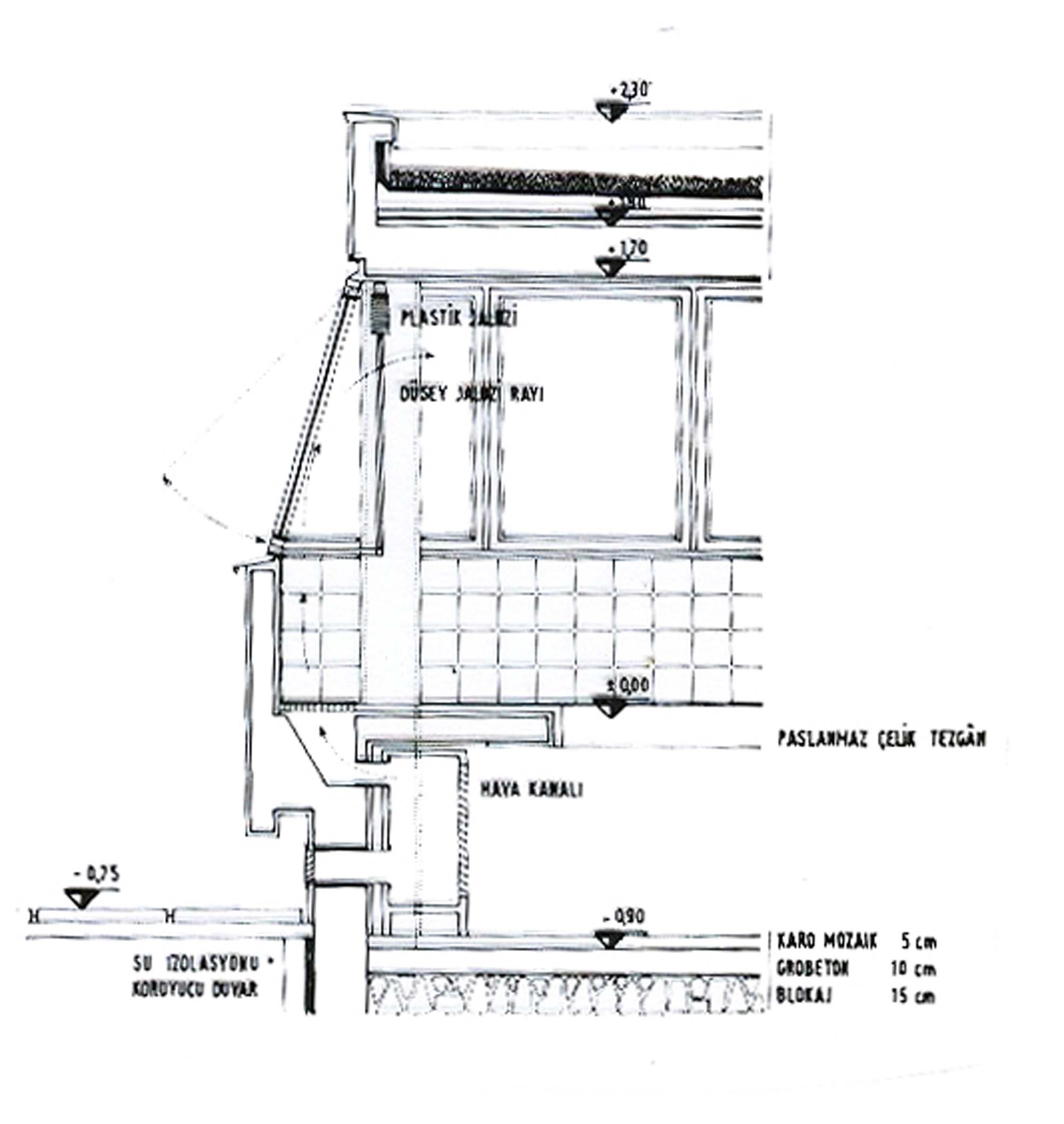
İstanbul Karayolları Zincirlikuyu Tesisleri
Proje Yeri: İstanbul
Proje Ofisi: Konuralp Mimarlık
Proje Tipi: Ofis
Tasarım Ekibi: Mehmet Konuralp
İşveren: Karayolları Genel Müdürlüğü
Yardımcı: Salih Sağlamer
İnşaat Bitiş Yılı: 1980