11/18
Paylaş
Resmi Orjinal Boyutunda Göster
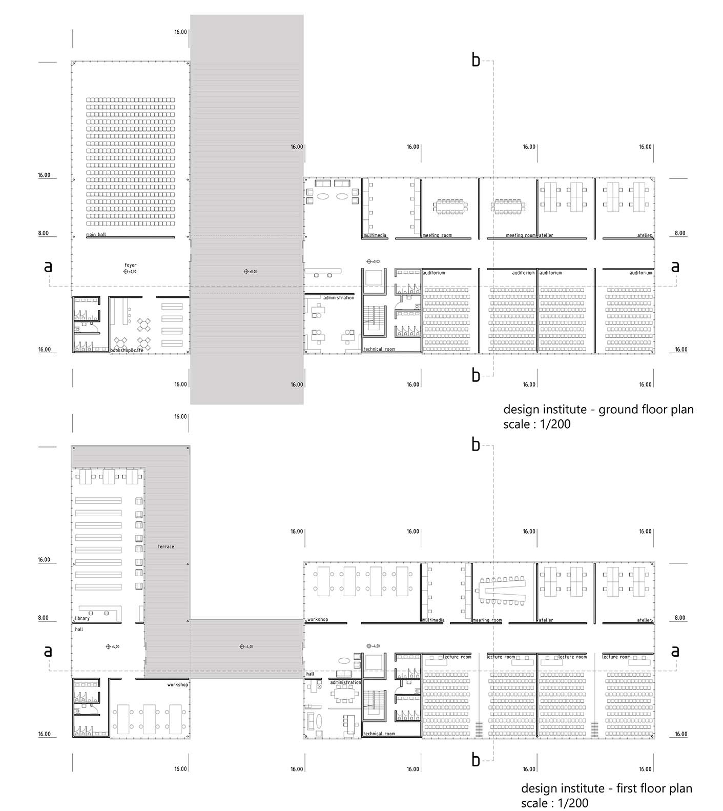
Proje Önerisi, Bandırma Tasarım Parkı Yarışması
Proje Yeri: Bandırma, Balıkesir
Proje Tipi: Diğer Eğitim Yapıları, Otel / Motel, Park
Proje Tipi Grubu: Katılımcı
Tasarım Ekibi: Kadir Uyanık, Dicle B. Özdemir, Luca Marcantonio
Yardımcı: Bedirhan Koç, Ahmet Özer