8/9
Paylaş
Resmi Orjinal Boyutunda Göster
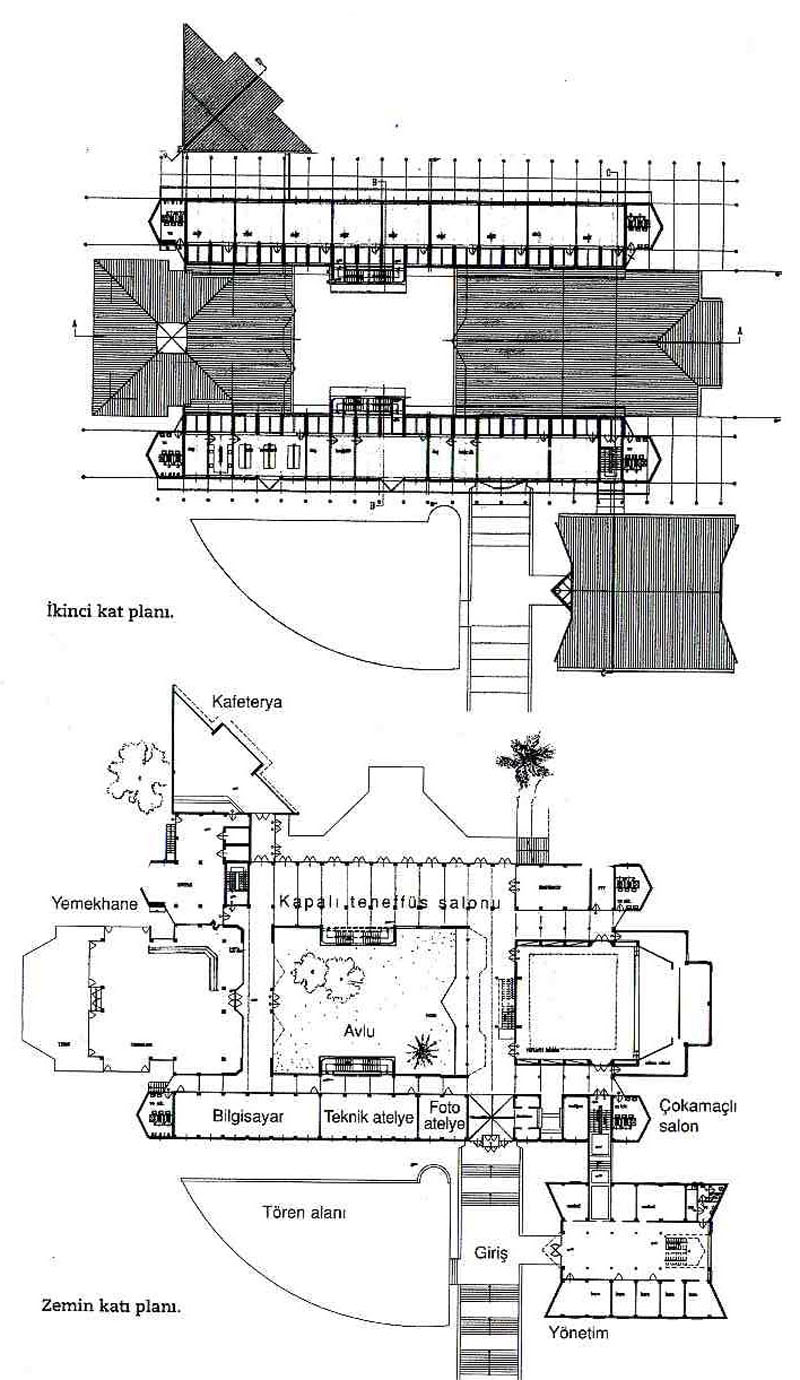
Denizli Erbakır Fen Lisesi
Proje Yeri: Denizli
Proje Tipi: Lise / Ortaöğretim
Proje Tipi Grubu: Eğitim
Tasarım Ekibi: Orhan Şahinler
Ana Yüklenici: Feka İnşaat
Proje Yöneticisi: Muammer Yapıcıoğlu
Statik Projesi: Tempo Mühendislik, Muammer Yapıcıoğlu, Sait Yaymanoğlu
Mekanik Projesi: Ömer Faruk Yüksel
Elektrik Projesi: Nizamettin Kolbaşı
Tesisat Projesi: Ömer Faruk Yüksel
İnşaat Başlangıç Yılı: 1996
İnşaat Bitiş Yılı: 1997