13/13
Paylaş
Resmi Orjinal Boyutunda Göster
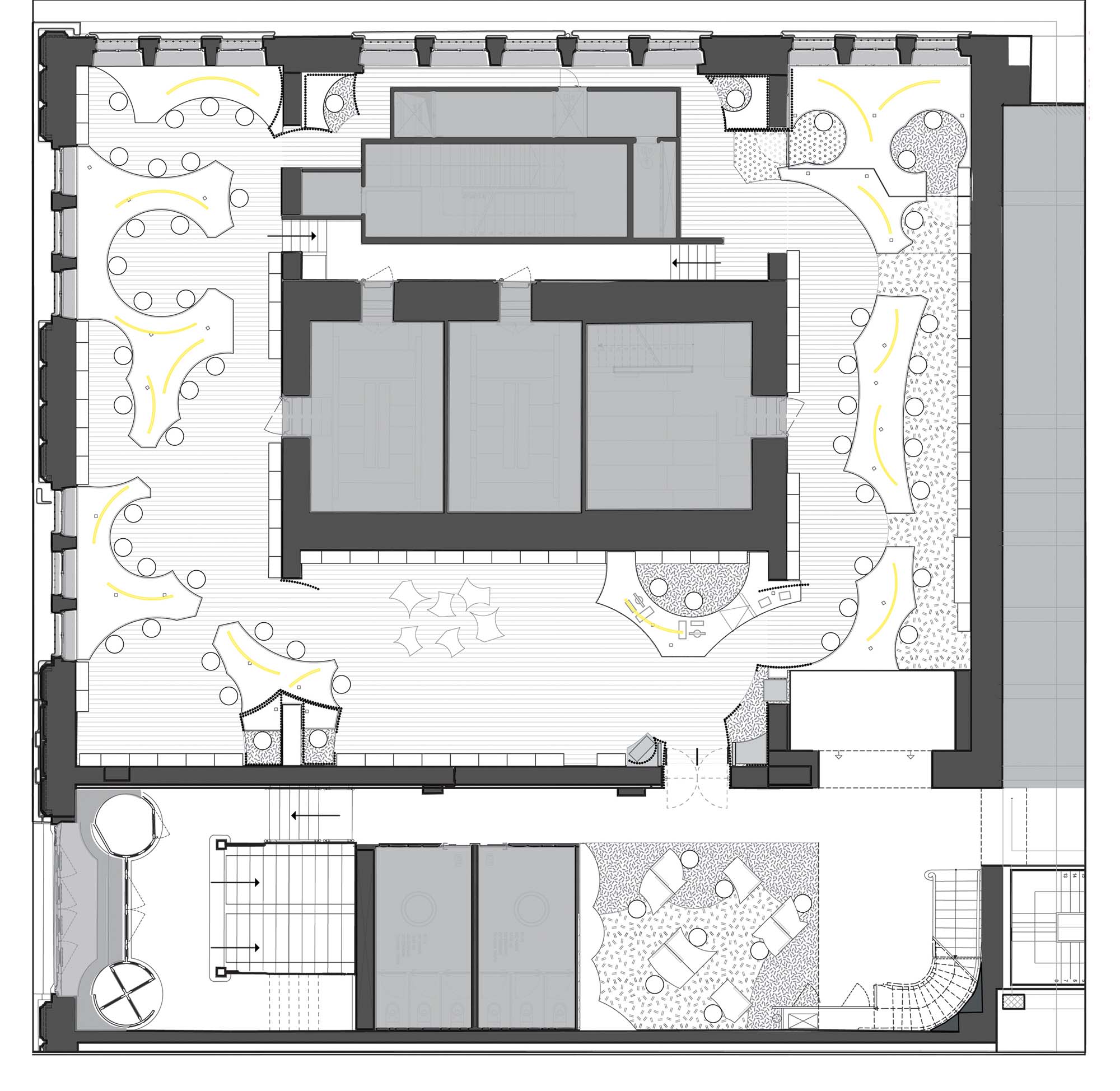
SALT Araştırma Ferit F. Şahenk Salonu
Project Location: Beyoğlu, İstanbul
Project Office: SANALarc Mimarlık, Araştırma ve Kentsel Tasarım
Project Type: Library
Proje Tipi Grubu: Kültür
Tasarım Ekibi: Alexis Şanal, Murat Şanal
Employer: SALT
Yardımcı: Dilşad Aladağ, Begüm Öner, Barış Harmancı
Ana Yüklenici: Sani Karamustafa
Projcet Manager: SALT
Model: 3Dörtgen
Photography: Mustafa Hazneci