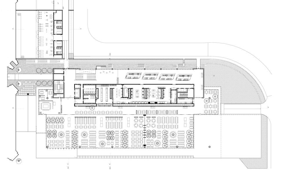
+5.00 Kotu Planı
23/24
Paylaş
Resmi Orjinal Boyutunda Göster
ACCR Binası
Proje Yeri: Gebze, Kocaeli (İzmit)
Proje Ofisi: Teğet Mimarlık
Proje Tipi: Ofis
Tasarım Ekibi: Mehmet Kütükçüoğlu, Ertuğ Uçar
İşveren: Yapı Kredi Bankası
Yardımcı: Alev Dağlı, Elena Giugni, Tuberk Altuntaş, Mert Üçer, Onur Akın
Statik Projesi: Aydın Pelin, Can Binzet Mühendislik
Mekanik Projesi: Okutan Mühendislik
Elektrik Projesi: Promer Mühendislik
Proje Başlangıç Yılı: 2009
Proje Bitiş Yılı: 2010
İnşaat Başlangıç Yılı: 2010
İnşaat Bitiş Yılı: 2011
Arsa Alanı: 198.000 m2
Toplam İnşaat Alanı: 15.500 m2