17/39
Paylaş
Resmi Orjinal Boyutunda Göster
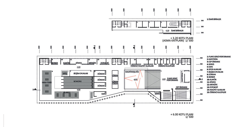
1. Mansiyon, Bandırma Onyedi Eylül Üniversitesi Kentsel Tasarım Yarışması
Project Location: Balıkesir, Bandırma
Project Type: Urban Design, University Campus
Proje Tipi Grubu: 1. Mansiyon
Tasarım Ekibi: Hüseyin Kahvecioğlu, Nurbin Paker, Birge Yıldırım Okta, Sibel Ürem, Elçin Kara Vatansever, Gürkan Okta
Consultant: Bahar Aksel Enşici, Damla Turan