19/42
Paylaş
Resmi Orjinal Boyutunda Göster
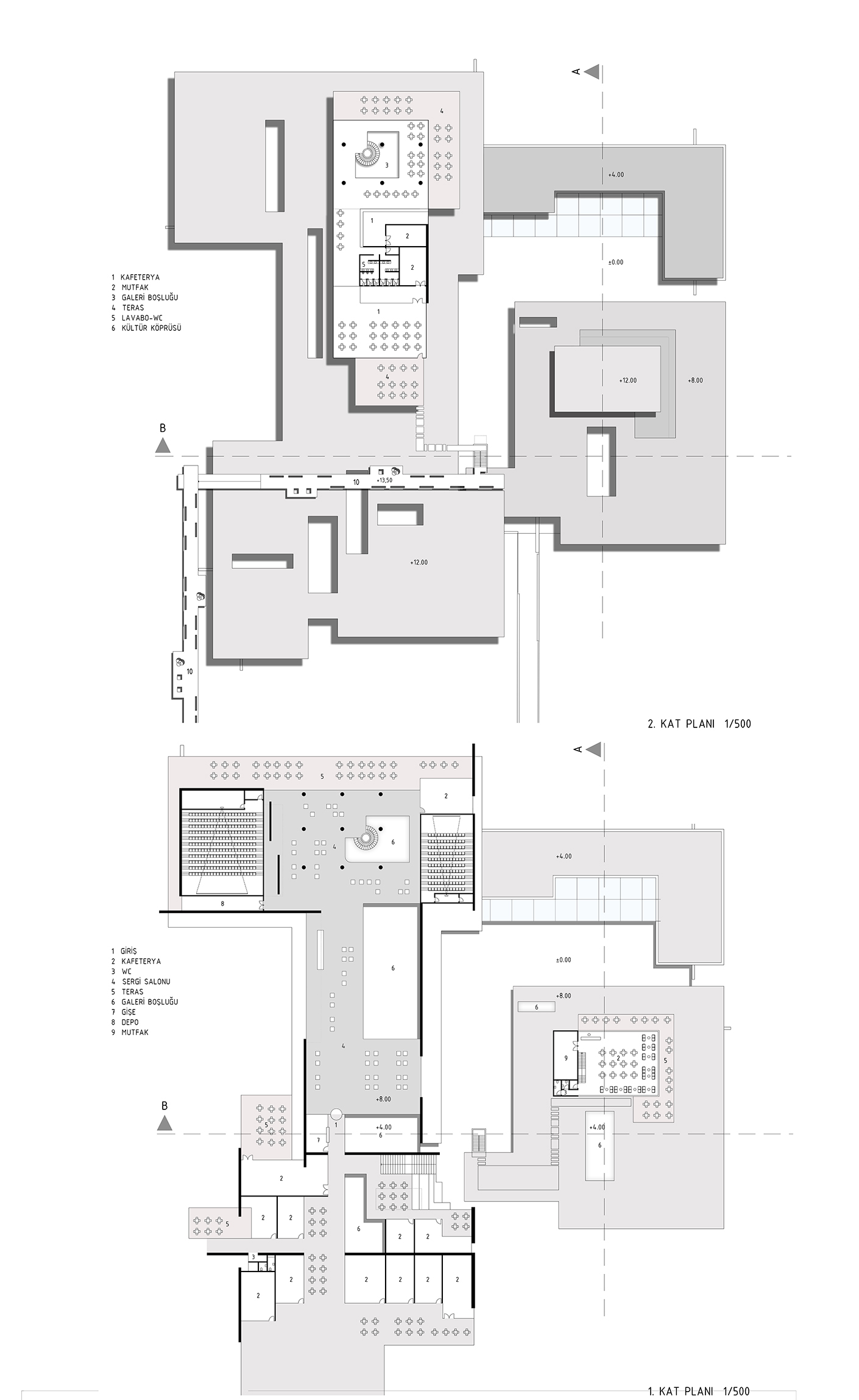
1. Ödül, Bandırma Onyedi Eylül Üniversitesi Kentsel Tasarım Yarışması
Proje Yeri: Balıkesir, Bandırma
Proje Ofisi: BEOFFICE, HSYM
Proje Tipi: Kentsel Tasarım, Üniversite Kampüsü
Proje Tipi Grubu: 1. Ödül
Tasarım Ekibi: Süleyman Yıldız, Hilmi Serkan Yüzbaşı, Rıfat Yılmaz, Burcu Sevinç, Ceyhan Yücel, Mehmet Cemil Aktaş