12/13
Paylaş
Resmi Orjinal Boyutunda Göster
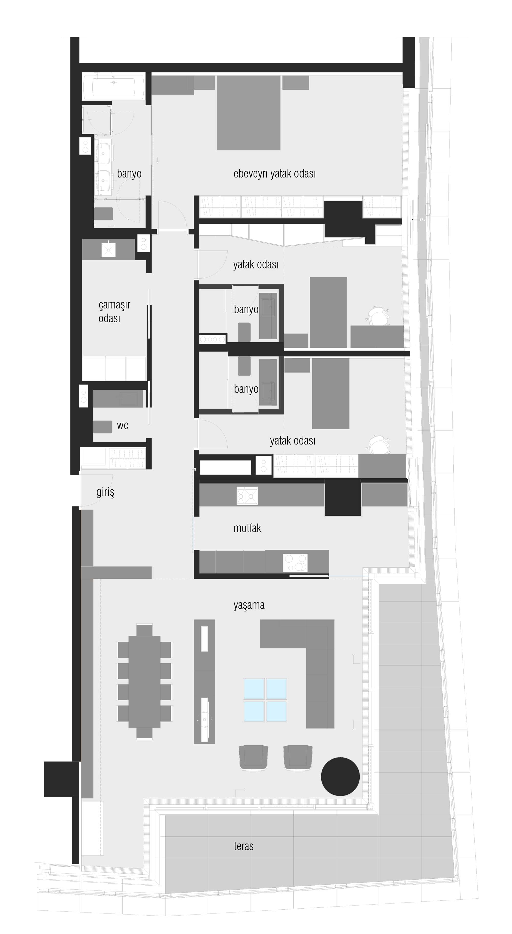
Özbinar Evi
Proje Yeri: Beşiktaş, İstanbul
Proje Ofisi: EETA (Emir Elmaslar Tasarım Atölyesi)
Proje Tipi: Tek Ev / Villa
Proje Tipi Grubu: Konut
Tasarım Ekibi: Emir Elmaslar
Ana Yüklenici: EETA (Emir Elmaslar Tasarım Atölyesi)
Fotoğraf: Mert Şen
Şantiye Yöneticisi: Hande Korkmaz
Proje Başlangıç Yılı: 2014
Proje Bitiş Yılı: 2015
İnşaat Başlangıç Yılı: 2015
İnşaat Bitiş Yılı: 2017
Toplam İnşaat Alanı: 165 m²