52/56
Paylaş
Resmi Orjinal Boyutunda Göster
Başlığı girin
Proje Yeri: Beşiktaş, İstanbul
Proje Ofisi: Elips Tasarım Mimarlık
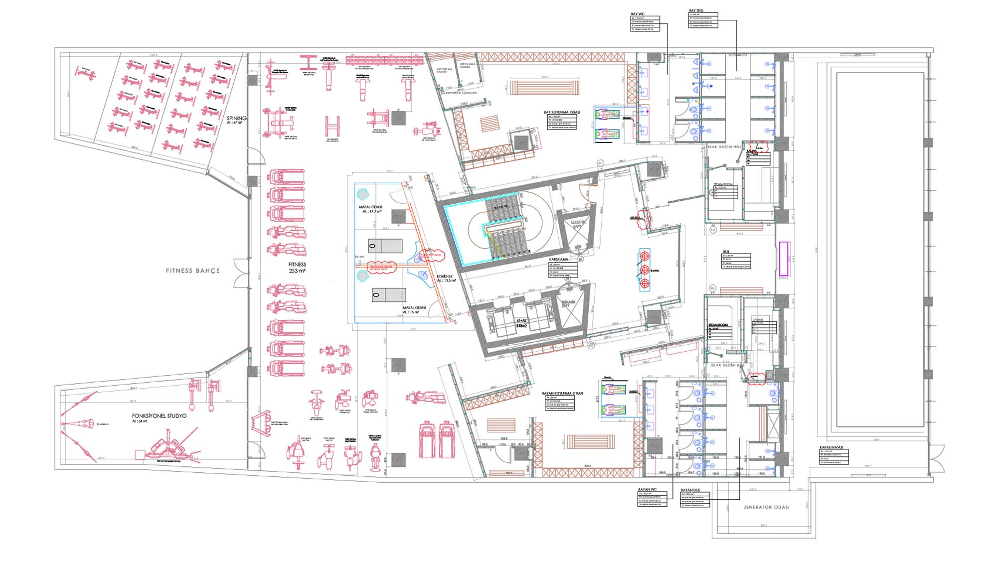
Proje Tipi: Sosyal Tesis
Proje Tipi Grubu: Rekreasyon / Spor
Tasarım Ekibi: Feza Koca, Vildan Tunalı, Çiğdem Şentürk
İşveren: BJK Beşiktaş İnşaat ve Tic. A.Ş.
Yardımcı: Afitap Kutluhan, Sezen Mert
Alt Yüklenici: Elips Tasarım Mimarlık
Peyzaj Mimarlığı: Butik Peyzaj
Proje Yöneticisi: Feza Koca
Mekanik Projesi: 5S Mühendislik
Elektrik Projesi: Emek Mühendislik
Tesisat Projesi: 5S Mühendislik
Akustik Projesi: infogroup
Şantiye Yöneticisi: Mutlu Oçmak, Elips Tasarım Mimarlık
Proje Başlangıç Yılı: 2015
Proje Bitiş Yılı: 2016
İnşaat Başlangıç Yılı: 2016
İnşaat Bitiş Yılı: 2017
Arsa Alanı: 6,100 m2
Toplam İnşaat Alanı: 3,500 m²