29/52
Paylaş
Resmi Orjinal Boyutunda Göster
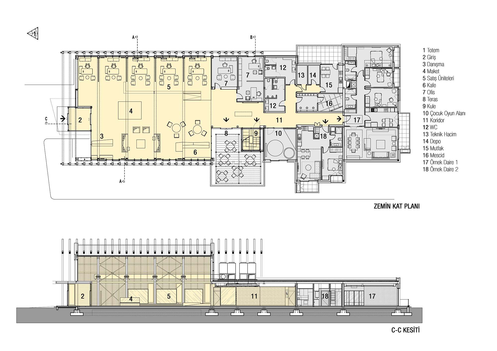
3S Firuze Konakları Satış Ofisi
Project Office: Ergün Mimarlık
Project Type: Sales Office
Proje Tipi Grubu: Commercial
Tasarım Ekibi: Eser Ergün, Zeynep Akpamuk
Employer: 3S Kale Gayrimenkul
Peyzaj Mimarlığı: Arzu Nuhoğlu Peyzaj Tasarım
Interior Architecture: Zeynep Ergün, Gizem Arslaner, Meltem Uysal
Lighting Project: Lipom Aydınlatma
Structural Project: Fonksiyon Mühendislik
Electrical Project: Enkom Mühendislik
Photography: Alp Eren, ALTKAT Architectural Photography
Construction Site Manager: Cengiz Türe
Project Start Date: 2016
Project End Date: 2016
Construction Start Date: 2016
Construction End Date: 2017
Building Plot Area: 2;000 m2
Total Construction Area: 850 m²