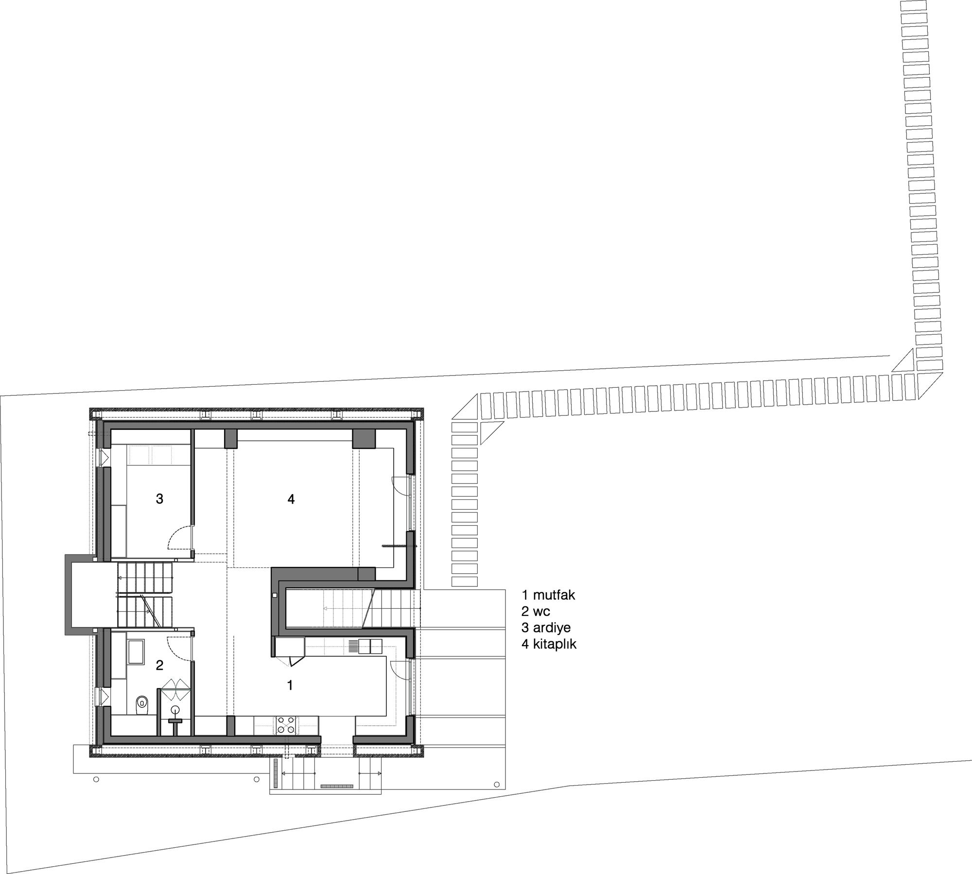
Bodrum Kat Planı
25/30
Paylaş
Resmi Orjinal Boyutunda Göster
Murathan Mungan Evi
Fotoğraflar: Cemal Emden
Proje Yeri: İstanbul, Beykoz
Proje Ofisi: CM Mimarlık
Proje Tipi: Tek Ev / Villa
Proje Tipi Grubu: Konut
Tasarım Ekibi: Cem Sorguç
İşveren: Murathan Mungan
Yardımcı: Sezin Ergene, Tolga Yağlı, Amina Rezoug
Ana Yüklenici: CM Mimarlık
Statik Projesi: SOM Mühendislik, Yapı Statik Proje Mühendislik
Mekanik Projesi: İntesmak Makine İnşaat
Elektrik Projesi: Erdoğan Şahin, SGS Elektronik Elektrik
Proje Başlangıç Yılı: 2010
Proje Bitiş Yılı: 2010
İnşaat Başlangıç Yılı: 2010
İnşaat Bitiş Yılı: 2011
Arsa Alanı: 406 m2
Toplam İnşaat Alanı: 304 m2