46/52
Paylaş
Resmi Orjinal Boyutunda Göster
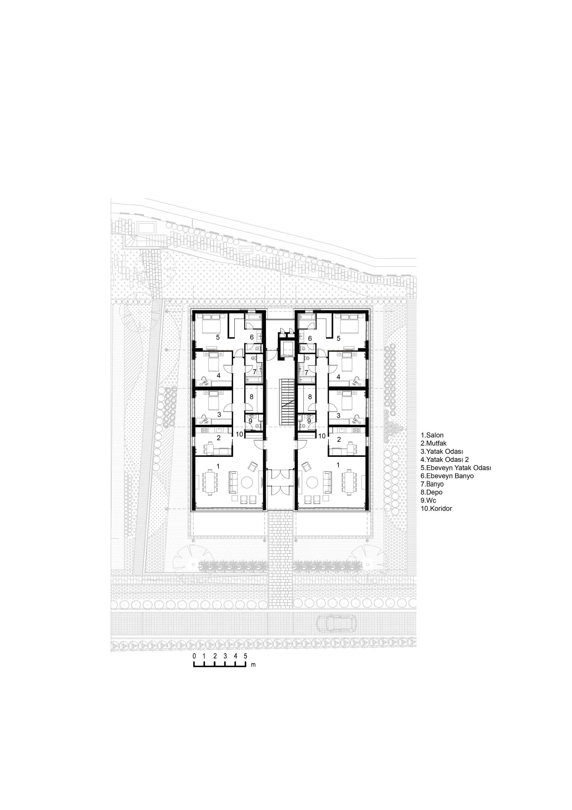
Nestortaköy Konut Yerleşkesi
Proje Yeri: İstanbul, Beşiktaş
Proje Ofisi: Kreatif Mimarlık
Proje Tipi: Konut Sitesi / Grubu
Tasarım Ekibi: Aydan Volkan, Selim Cengiç, Erhan Yıldız, Sinan Günay, Çiçek Tezer
Peyzaj Mimarlığı: Arzu Nuhoğlu Peyzaj Tasarım
Fotoğraf: Cemal Emden
Proje Başlangıç Yılı: 2011
Proje Bitiş Yılı: 2012
İnşaat Başlangıç Yılı: 2012
İnşaat Bitiş Yılı: 2015
Arsa Alanı: 21.000 m²