14/21
Paylaş
Resmi Orjinal Boyutunda Göster
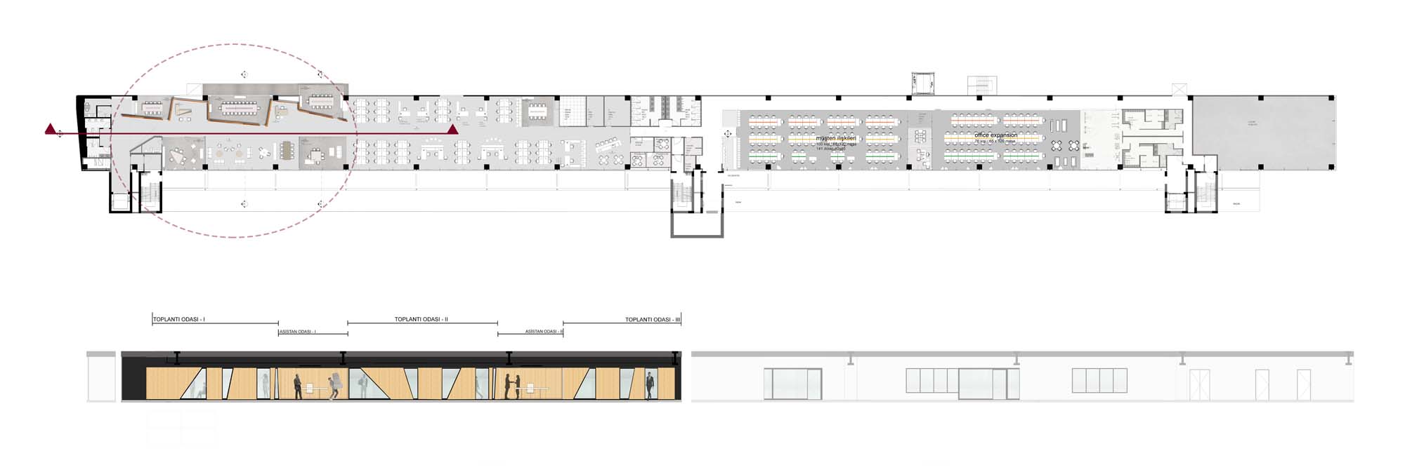
hepsiburada.com Operasyon Merkezi
Proje Yeri: Gebze, Kocaeli (İzmit)
Proje Ofisi: ÜNDER Architects
Proje Tipi: Ofis
Proje Tipi Grubu: Endüstriyel
Tasarım Ekibi: Burak Ünder, Regaip Adem, Müge Taştan, Tuba Şehitoğlu
İşveren: Doğan Online
Ana Yüklenici: Sistema
Fotoğraf: Mirhan Bilir
Mimari Mesleki Kontrollük: ÜNDER Architects
Proje Başlangıç Yılı: 2016
Proje Bitiş Yılı: 2016
İnşaat Başlangıç Yılı: 2016
İnşaat Bitiş Yılı: 2016
Toplam İnşaat Alanı: 2,500 m²