10/11
Paylaş
Resmi Orjinal Boyutunda Göster
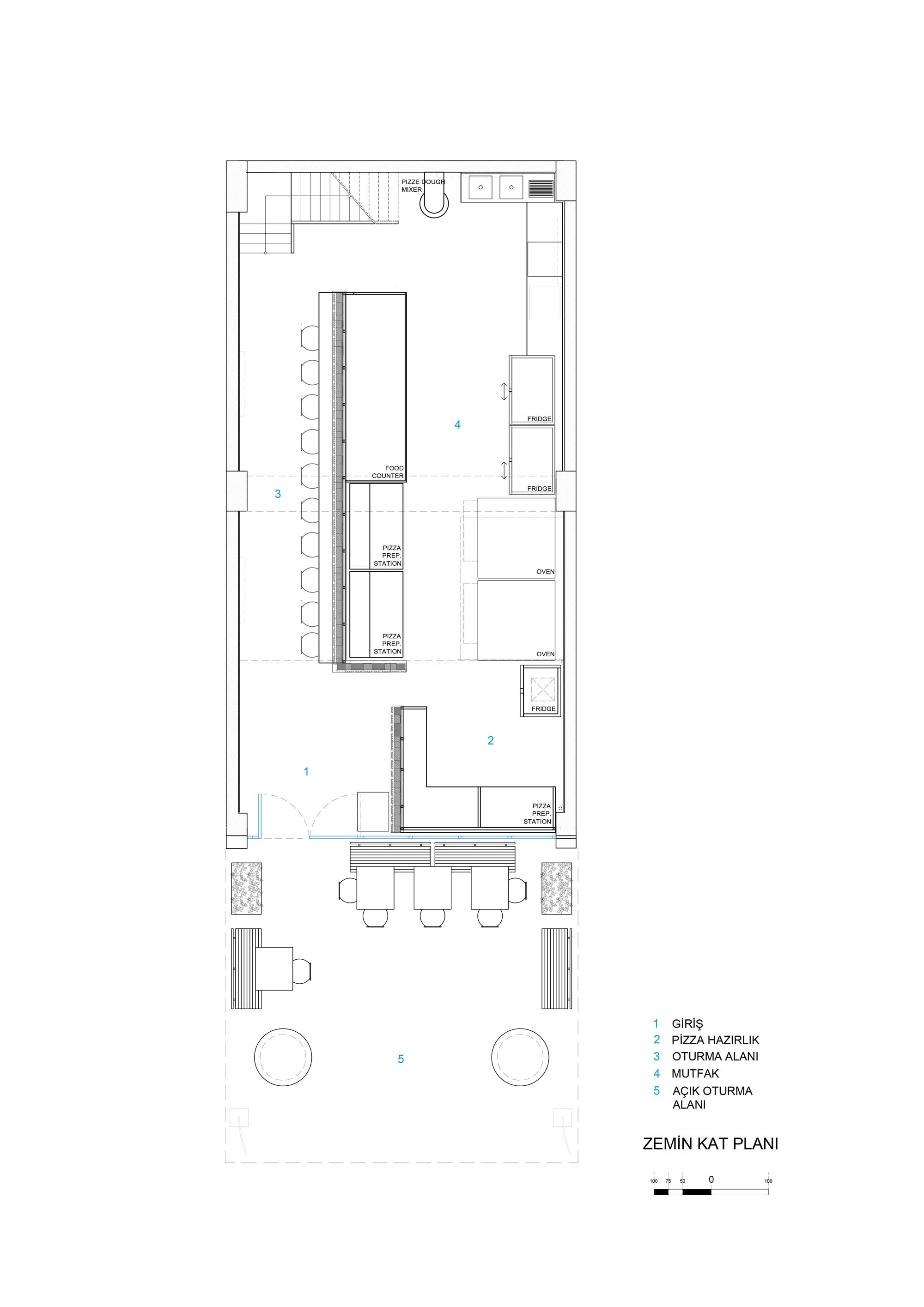
The Upper Crust Maslak
Proje Yeri: Sarıyer, İstanbul
Proje Ofisi: CKMY Architects
Proje Tipi: Restoran / Kafe / Bar
Proje Tipi Grubu: Ticari
Tasarım Ekibi: Can Kendir, Mert Yılmaz, Berk Öktem, Cansu Dölek
İşveren: Seneka Gıda Ltd
Ana Yüklenici: CKMY Architects
Proje Yöneticisi: Berk Öktem
Aydınlatma Projesi: Merve Aşçıoğlu
Mekanik Projesi: DWG Mühendislik
Mimari Mesleki Kontrollük: Berk Öktem
Proje Başlangıç Yılı: 2017
Proje Bitiş Yılı: 2017
İnşaat Başlangıç Yılı: 2017
İnşaat Bitiş Yılı: 2017
Toplam İnşaat Alanı: 145 m²