12/17
Paylaş
Resmi Orjinal Boyutunda Göster
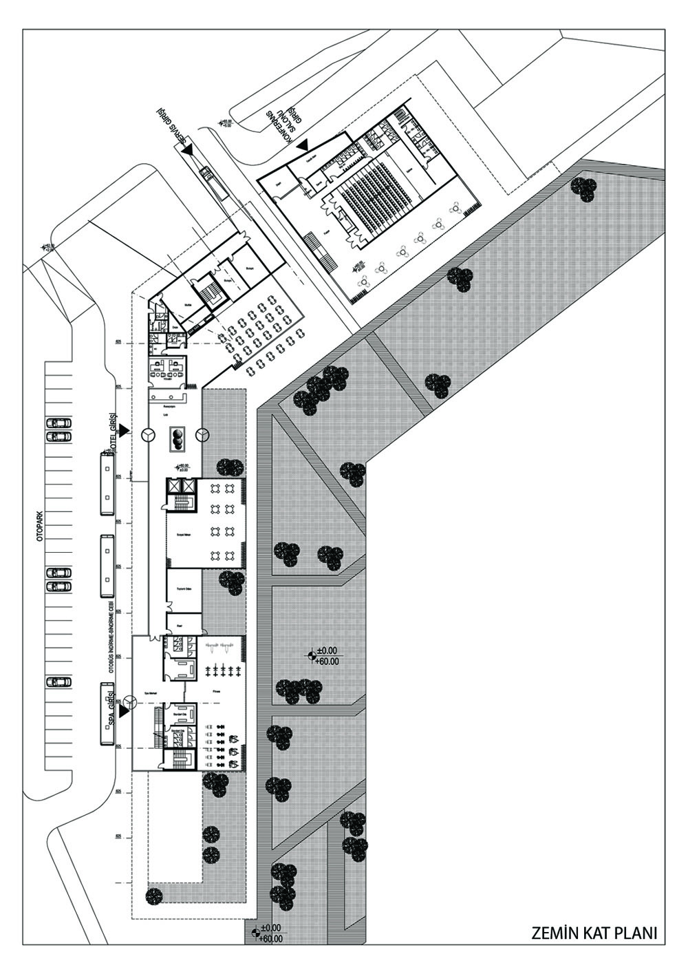
Katılımcı (NİTA-Nitelikli Tasarımlar Atölyesi), Ahlat Gençlik Kampı Mimari Proje Yarışması
Proje Yeri: Ahlat, Bitlis
Proje Ofisi: NITA Mimarlık
Proje Tipi: Yurt / Konukevi, Sosyal Tesis
Proje Tipi Grubu: Katılımcı
Tasarım Ekibi: Serdar Kızıltaş, Zeynep Melike Atay Kızıltaş, Cumhur Yılmaz
Yardımcı: Ömer Altuğ Gönülal, Furkan Kaan Aslan