15/15
Paylaş
Resmi Orjinal Boyutunda Göster
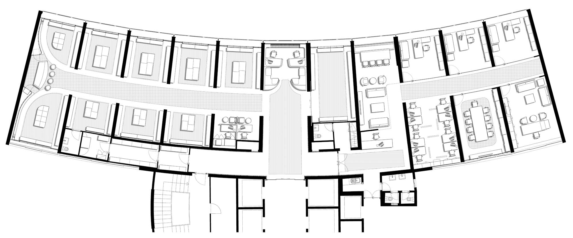
Albümler Alkindy Showroom ve Ofisi
Proje Yeri: Suudi Arabistan, Cidde
Proje Ofisi: OSO Mimarlık
Proje Tipi: Mağaza / Showroom, Ofis
Proje Tipi Grubu: Ticari
Tasarım Ekibi: Okan Bayık, Serhan Bayık, Ozan Bayık, Erkan Çeçen, B. Bahar Çiçekçi, Murat Lüleci
İşveren: Alkindy for Shoes
Uygulama Projesi: OSO Mimarlık, Alkindy for Shoes
Fotoğraf: OSO Mimarlık
İnşaat Bitiş Yılı: 2017
Toplam İnşaat Alanı: 690 m2