22/38
Paylaş
Resmi Orjinal Boyutunda Göster
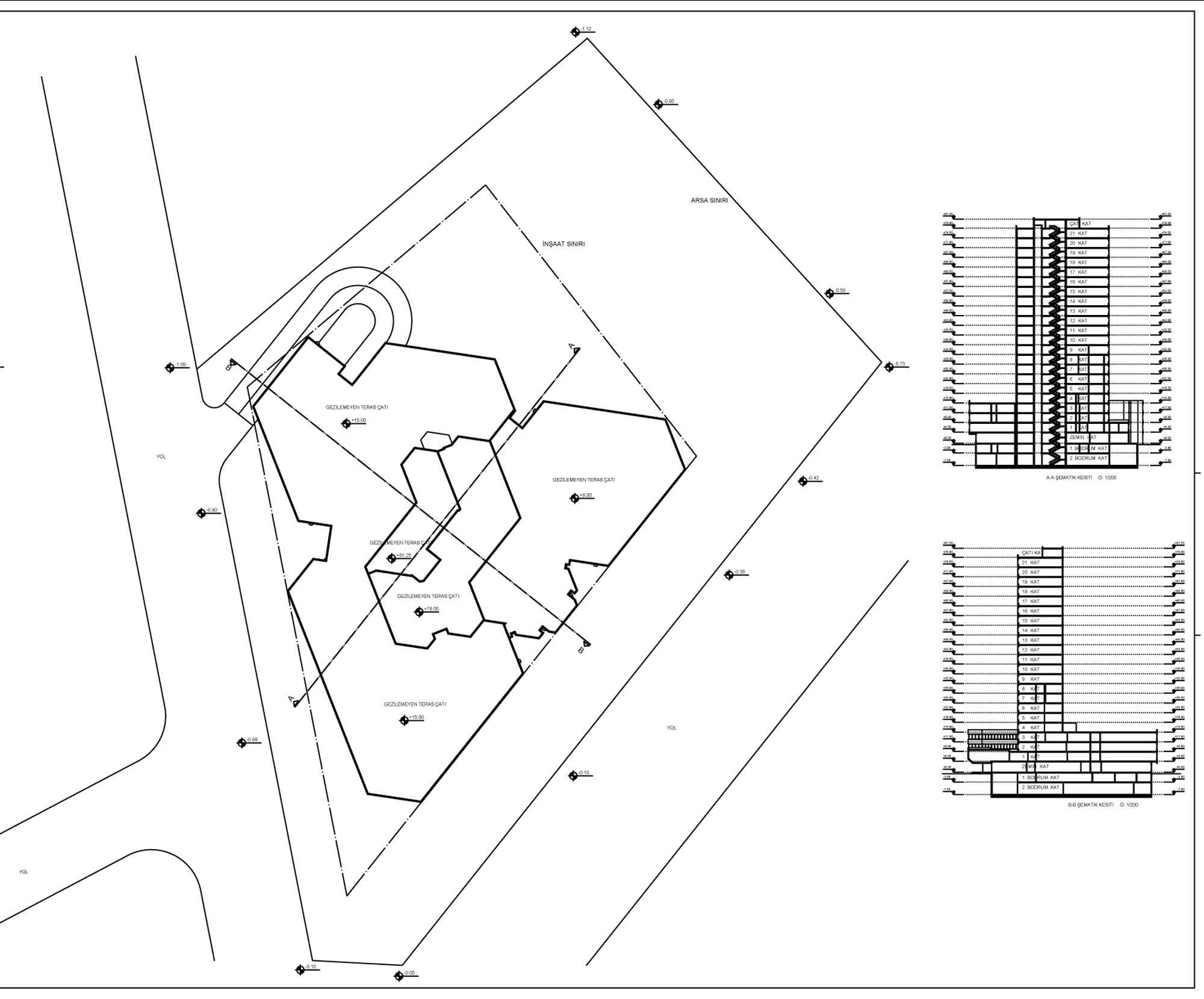
Konya Defterdarlığı Gelir Birimleri Hizmet Binası
Project Location: Konya
Project Type: Other Public Buildings
Proje Tipi Grubu: Kamu
Tasarım Ekibi: Ahmet Alkan, Mustafa Kaş
Structural Project: Yaşar Kaltakşı
Mechanical Project: Şefik Bilir
Construction End Date: 1987