30/38
Paylaş
Resmi Orjinal Boyutunda Göster
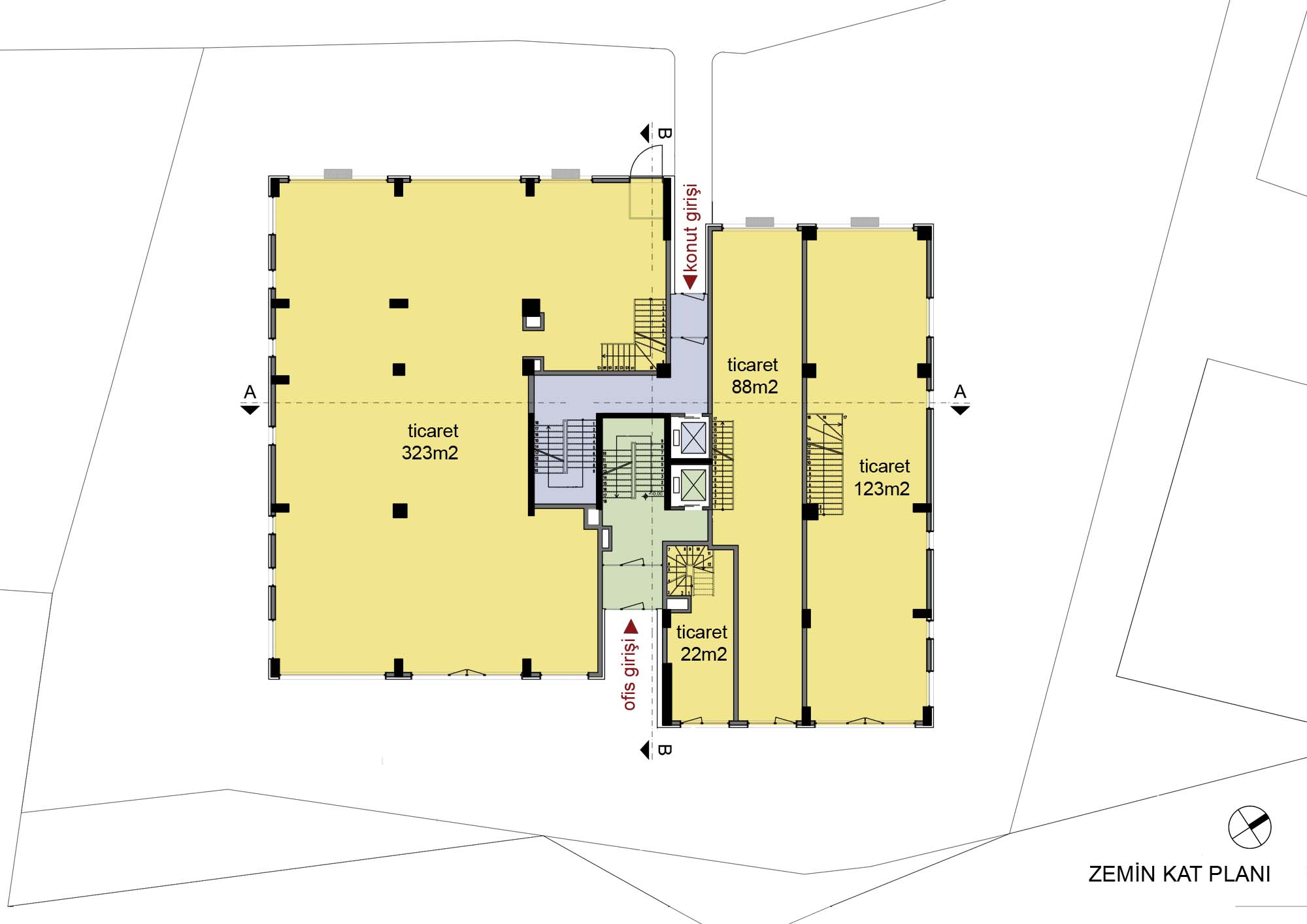
Pruva Plaza
Proje Yeri: Karadeniz Ereğli, Zonguldak
Proje Ofisi: Manço Mimarlık
Proje Tipi: Ofis, Apartman, Mağaza / Showroom
Proje Tipi Grubu: Ticari, Konut
Tasarım Ekibi: Ali Manço
İşveren: Arma İnşaat
Yardımcı: Zühtü Usta, Zeynep Ceren Erdinç
Ana Yüklenici: Arma İnşaat
Proje Yöneticisi: Fırat Eroğlu
Statik Projesi: Çivici Mühendislik
Mekanik Projesi: Çivici Mühendislik
Elektrik Projesi: Çivici Mühendislik
Tesisat Projesi: Çivici Mühendislik
Mimari Mesleki Kontrollük: Fırat Eroğlu
Şantiye Yöneticisi: Veli Karakök
Proje Başlangıç Yılı: 2013
Proje Bitiş Yılı: 2013
İnşaat Başlangıç Yılı: 2013
İnşaat Bitiş Yılı: 2015
Arsa Alanı: 1,702 m²
Toplam İnşaat Alanı: 4,730 m²