12/21
Paylaş
Resmi Orjinal Boyutunda Göster
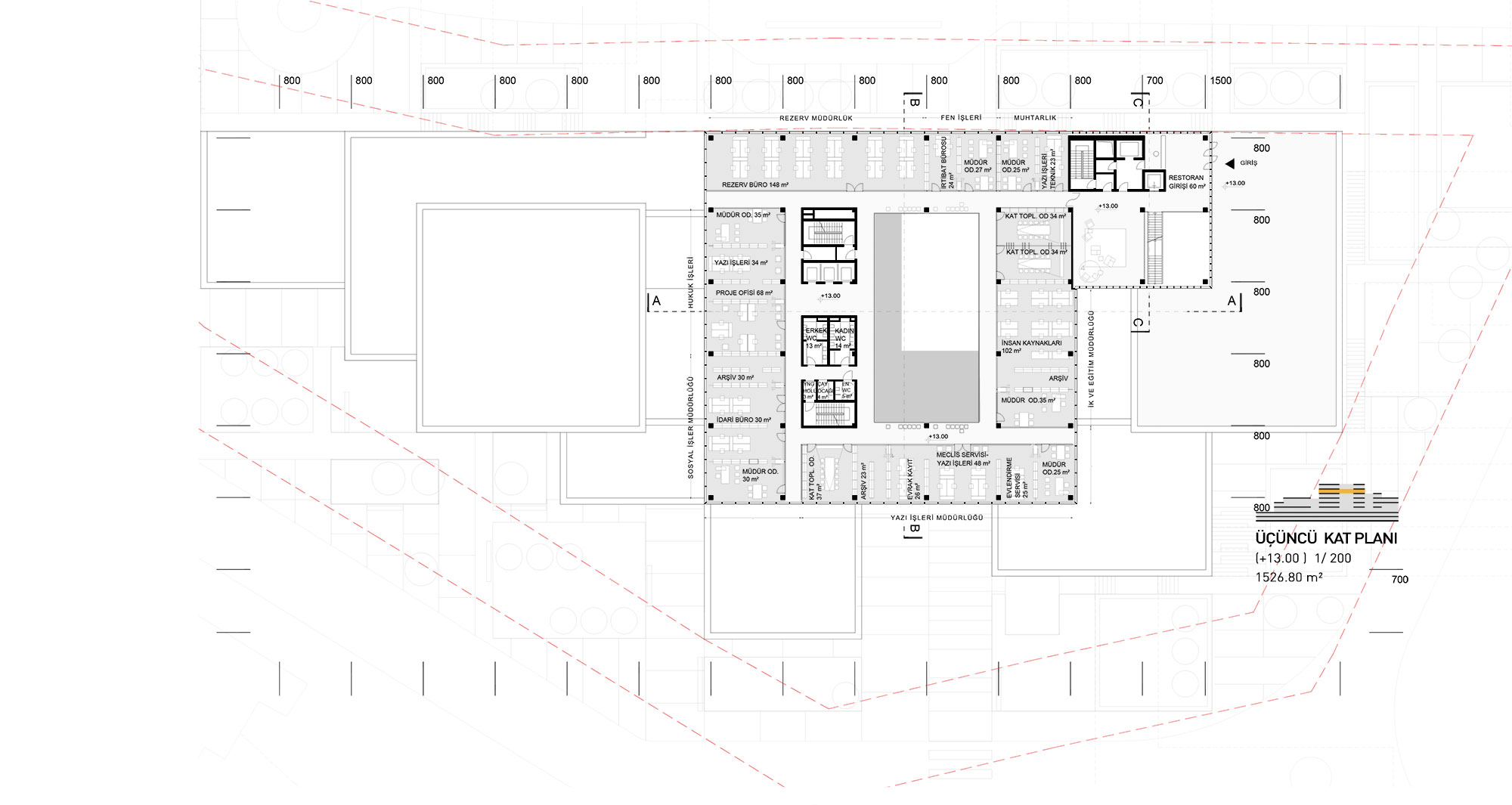
3. Ödül, Süleymanpaşa Belediye Hizmet Binası Mimari Proje Yarışması
Project Location: Tekirdağ
Project Type: Belediye Hizmet Binası
Proje Tipi Grubu: 3. Ödül
Tasarım Ekibi: Mehmet Metin Polat, Bilge Altuğ, Gizem Özer, Ecem Özden
Yardımcı: Serpil Kardaş, Burak Hacıvelioğlu