12/32
Paylaş
Resmi Orjinal Boyutunda Göster
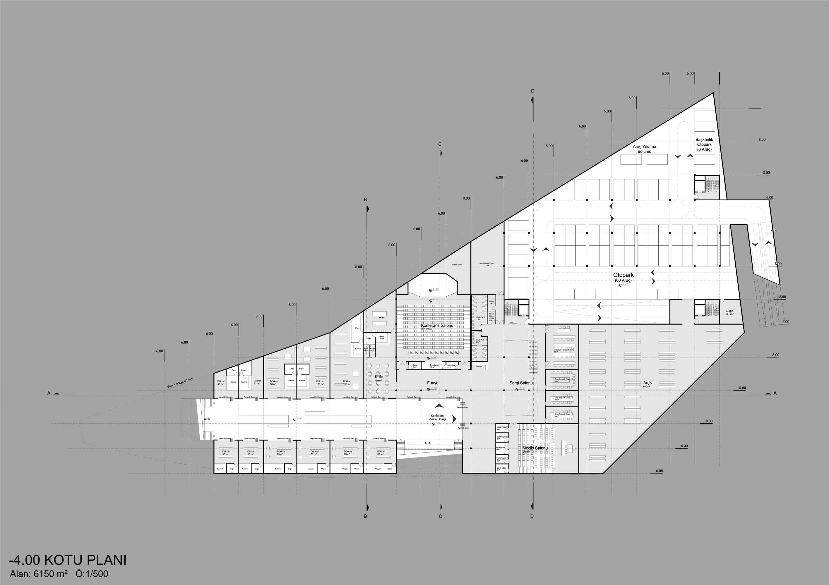
2. Mansiyon, Süleymanpaşa Belediye Hizmet Binası Mimari Proje Yarışması
Proje Yeri: Tekirdağ
Proje Ofisi: MEES Mimarlık
Proje Tipi: Belediye Hizmet Binası
Proje Tipi Grubu: 2. Mansiyon
Tasarım Ekibi: Mete Keskin, Esra Yılmaz Keskin, Gizem Ertaş, İbrahim Halil Katar
Yardımcı: Abdulkadir Keleş, Aylin Özkan, Nusret Uşun, Emre Sağlık